
第5套 9米大客厅+阳光房+土灶,13×11米让欧式黯然失色的三层现代别墅

户型基本信息
占地尺寸:13.60m × 11.20m
占地面积:150㎡
建筑面积:423㎡
建筑高度:13m
建筑结构:框架结构
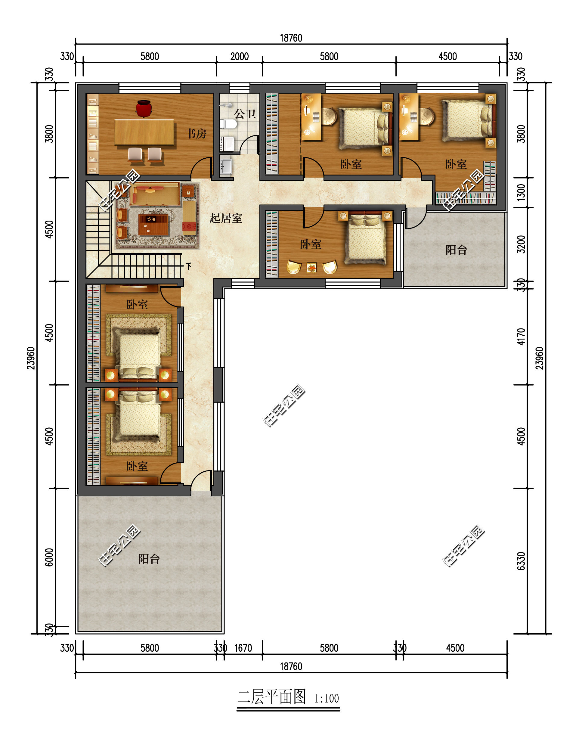
建筑情况:设9室 3厅 5卫 1厨 1阳光房 1露台 2阳台 1土灶

平面布局图:



今天的分享到此结束,这5套带柴火灶的农村别墅,你最喜欢哪一套?欢迎在评论区留言,下期推荐内容听你的。
【 占地面积|柴火厨房真的要被淘汰?等等,我们还需要它】关注本号,获取更多户型信息,了解更多建房小知识。
推荐阅读
- 别墅|16×21米一层别墅,柴火灶+茶室+12米面宽的客餐区,非常适合养老
- 厨房|想盖房子,可是农村没下水道,怎么办?
- 厨房|厨、厕、卧的特殊布局,看这一篇就够了!
- 厨房|开放式、封闭式、半开放式!厨房格局谁更强?
- 厨房天然气管子可以自己买吗
- 厨房|他在9㎡顶楼蜗居里住3年,家中又窄又逼仄,却是麻雀虽小五脏俱全
- 水槽|姑娘改造5㎡小厨房 用最简单的方法呈现最温馨的效果
- 隔墙|74平现代风一居室拆掉厨房隔墙换来大客厅,水泥墙水泥地简单耐看
- 大家电|苏泊尔积极布局厨卫大家电市场,打造厨房全天候产品矩阵
- 别墅|15×13米二层新中式别墅,双厨房设计,楼上楼下都能做饭
