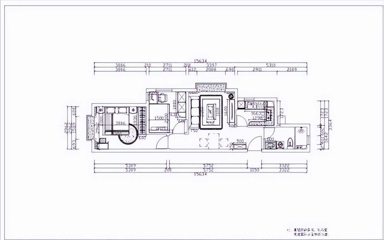
本案为太阳城两室一厅一厨一卫65㎡户型,这是一套平米不太大的老房。业主不希望装的太复杂,一切以简单温馨为主,其中采光和透气方面都很不错,根据业主的要求,阳光力天装饰的设计师把风格定义为北欧,今天我们就一起来欣赏这套65㎡北欧风格小户型装修效果图。

▼客厅
客厅空间不是特别大,要合理布局充分利用,进门左手边配了一个鞋柜,使用很方便,挂画与沙发相辉映,同时提升整体空间色彩。

客厅采用彩色乳胶漆做电视背景墙,木色的电视柜还有布艺沙发,使客厅看上去非常温馨,也是大多数年轻人较喜欢的风格。

▼主卧室
主卧室的设计很有浪漫色彩,浅蓝色的背景墙搭配浅粉色的床品,透露着轻松明快,亲切柔和的气息。地面则采用实木复合地板,环保健康。

为了扩大主卧室的使用空间,在衣柜方面特别使用了平开门的方式,而且白色的衣柜,也能提升空间的观感,完全能满足日常使用需求。

▼次卧室
次卧室打算以后给孩子居住,由于有两扇窗户,给后期的布局方面带来困扰,再加上次卧室的面积本来就小,想要同时满足储物、办公、休息的功能,的确是一道难题。

地面同主卧室一样,采用了实木复合地板,环保健康,床尾的地方摆放了书桌椅,便于以后孩子的学习,而且整体采用木色家具,显得空间很敞亮。
【 北欧风格|65平北欧风格小户型装修,超温馨的两室一厅,生活就是这么简单!】

推荐阅读
- 普兰店|普兰店近五千平米地块规划公布
- 大连|甘区近千平米不动产拟转让 转让底价为1648.86万元
- 公寓|44平米公寓,设计师把床放在阳台,业主却给了大大的赞
- 别墅|保定楼市看房日记:丽景蓝湾C区147平米三居,首付仅需70万
- 新郑|蹊跷!和平学区房仍在涨价,是什么原因?
- 深圳市|房产大佬建议:“买三不买二,面积不超过110平”,是何缘由?
- 二居室|80平现代风二居室,在这里开启平平淡淡的生活
- 挂画|107平日式风三居室,墙上的挂画给空间增添了一抹亮丽的色彩
- 购房置业|杠杆买房到底有多可怕?苏州140平的房子2年内最高暴跌250万
- 楼市|无锡楼市,疯狂过后,楼市慢慢回归平静,横盘三个月:房价调控大
