
抱怨自家的厨房太小,在逼仄的空间里根本无法享受做饭的乐趣,厨房要大,要开敞,于是就拥有了现在的开放式超级大厨房。
一改之前狭小阴暗的感觉,华丽变身高级大宅,一个人住简直不要太奢侈!感觉特别适合我这个黄金单身女汉子的身份。
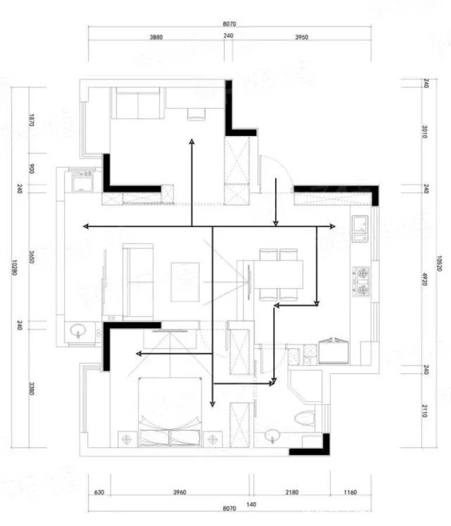
【户型图】1.把厨房打开,一进门非常开阔,而且光线很好。2.我是个电视迷,周末宅在家看电影玩游戏超舒服,所以客厅做了半墙当电视背景墙,餐桌也有个靠背。3.各个空间都配有专属的储物空间,妈妈再也不用担心我买买买无处放。4.主卧改成从客厅那一侧进门,动静分离比较合理。5.最喜欢的是主卧开了扇门直接通向洗手间,晚上不用绕一大圈去厕所,超方便!
推荐阅读
- 武汉|买房选140平方还是两套70平方更划算呢?后悔知道晚了!
- 南京|旅顺超9万平米地块规划公示
- 上海市|这家上海新锐二手房机构,宣布彻底躺平!全员自动停工
- 别墅|女儿拆迁拿了三套房子,继母:我要88平方的房子和你爹的全部房产
- 楼市|用平常心看待目前的楼市表现
- 装修|100平现代风设计,粉嫩色系女儿房颇有田园自然风
- 装修|80平现代风设计,灰色基调的家,沉稳中带点小清新
- 衣帽间|260平新中式四居室,化繁为简,在意境
- 窗边|94平北欧风小户型,飘窗带了沙发和椅子,独特而又实用
- 现代风|108平现代风三居室合理的布局,让杂乱无序的毛坯房“大换脸”
