来自北京的朱先生今年回老家过年,看到右边的邻居家把老房子推倒建了一栋小别墅,朱先生看着自家的破旧老房子思考良久:自己现在有点积蓄,城里也没买房,是该考虑回农村建一栋房子了,也不能让父母再住这比自己年纪还大的房子,这是为了让自己“落叶能归根”,也是为了让父母住得更舒适。
于是朱先生找到了我们,让我们帮他设计一套别墅。东边有邻居,不能开窗,为了保证卧室采光,均朝南设计。布局紧凑不浪费,增加了书房,给父母、孩子和自己提供看报、学习、办公的环境。

户型基本信息
占地尺寸:12m × 10m
占地面积:123.48㎡
建筑面积:250.56㎡
建筑高度:9.532m
建筑结构:砖混结构
建筑情况:设4室 1餐厅 2卫 1厨 1客厅 1阳台 1起居室 1书房 1储藏室

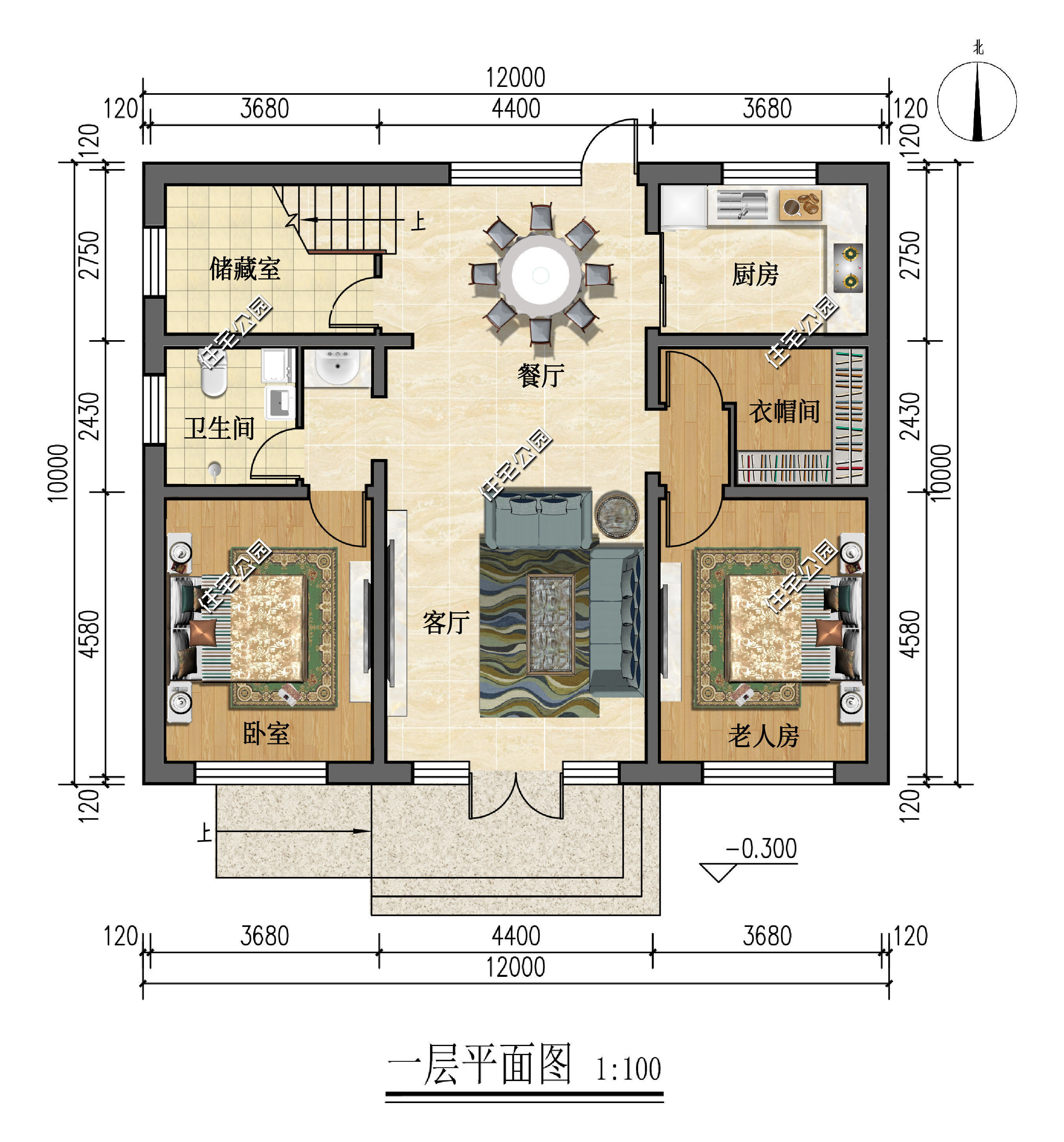
平面布局图:
一层
别墅双入户设计,南面入户为客厅,客厅设在门口,拥有更好的采光和通风,生活更舒适,家里来人进门就能接待,会客更方便。
北面入户为餐厅、厨房,择菜、洗菜,杀鸡、宰鱼室外进行,不用经过客厅,操作更便捷,也能保持室内整洁。
一层有2间卧室,均朝南设计,东侧老人房自带衣帽间,拥有更宽敞的居住空间,东墙无窗设计,房间的私密性更好,南面开窗,不用担心采光会限制。

二层
二层布局比较简单,设2间朝南卧室,满足多位家人的居住需求。
设书房,为办公、学习提供安静、独立的空间,随着居家办公的流行,以及家人对家庭教育的重视,家里有书房,比学区房更实用。
起居室面积宽裕,向南连通阳台,餐前饭后到阳台边晒太阳,边喝茶也是一种不错的享受;向北连通健身区,闲暇之余锻炼身体,增强体魄,身体更健康。如果不需要健身区,业主可以根据自己的需求改造,创造更适合自己的生活空间。

【 老房子|12×10米二层小别墅,卧室均朝南设计,舒适度拉满】关注本号,获取更多户型信息,了解更多建房小知识。
推荐阅读
- 银行|房贷转成个人经营贷?以为捡个便宜,实则到最后房子都可能被收走
- 购房置业|房地产财经篇:房住不炒后,储蓄少,老百姓本该买房的钱去哪了?
- 卖家|5月起,有房产证的房子一旦出现5种情况,你的购房成本将节省20%!
- 天津市|为什么中国房子卖不出去,开发商还要一直建?曹德旺终于说出实话
- 手枪型|90后夫妻将70㎡老破小改造成清爽简约风,功能全收纳多,好看实用
- 购房置业|我今年准备在村里盖房子,预算50万!
- 武汉|我做的最正确的决定就是买房,我的财富绝大多数也来源于房子升值!
- 房贷利率|高新区“人才”再维权,房子降价到底是对还是错?
- |新加坡为何不种粮食呢?有限的土地拿去建房子,不怕买不到粮食吗
- 贷款利率|美国房子永久产权比公摊面积更可恨
