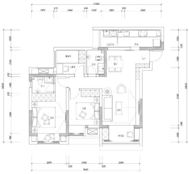
这是一套面积为76平米的北欧风格小三居,一家五口,业主要求房子的装修要考虑父母居住的舒适度还有孩子学习生活的私人空间,以及日常收纳的需求。所以设计师根据业主的需求对户型进行了功能的优化调整。丝绒、金属、木纹、皮革、灯光,每个材质的加入,都让这个空间的耐看度和精致度得到了提升。
沙发背景墙可以说是客厅的亮点,选择了温暖又恬静的珊瑚色,搭配灰色布艺沙发,色彩层次丰富。
阳台一侧打造成收纳柜,另一侧是个阅读区。墨蓝色窗帘搭配粉色懒人沙发,让色彩有了对比和层次。
简约的北欧风格设计,客厅色彩搭配年轻浪漫,通过精致的细节,营造出温馨舒适且有品质感的生活空间。装修的时候很多人会头疼选什么装修风格,餐厅装修风格有哪些,一般来说餐厅装修风格都会和整屋装修统一,并不是所有风格都适合餐厅装修,通常建议两居室的小户型房屋采用简约风格,这种风格干净、简洁,而且不会浪费空间,整体风格显得简约又整洁。
厨房用的灰色墙砖,既简洁大方又耐脏。操作台做了高低台面的设计,洗菜刷碗再也不用弯腰了。
家在小,也要为自己的家注入更多的灵魂,一家人其乐融融、温馨无限,才不辜负你所期待的诗意生活。
推荐阅读
- 福州|北漂老外改造出租房,打造一家四口的“世外桃源”:这才是生活
- 公租房|再次领跌全国 4月北海房价跌幅继续扩大
- 市北区|气温楼市同步升温 海南四盘销量“火力全开”
- 主卧|北京夫妻拒绝“过度装修”,把120㎡家装修得堪称教科书,太美了
- 上林|70㎡户型,她以逆向思维,将客厅放在北面,完工后反而明亮多了
- 上海市|把60平米的上海房子卖了500万,去东北花5万买了一套房,太完美了
- 淮北|2022年5月17日淮北新房备案101套
- 露台花园|北大教授:收入比房价涨得快!被问为何买不起房?答掏空6个钱包
- 重庆|“北漂大户”卸妆!失去外援之后,成交数据如何?
- 北京市|明珠城捌号院规划公示 拟建6栋住宅
