本方案是围绕现代简约为主题,适合于三口之家居住,以简洁明快的设计风格为主题,简洁和实用是现代简约风格的基本特点。现代风格已经大行其道几年了,仍然保持很猛的势头,这是因为人们装修时总希望在经济、实用、舒适的同时,体现一定的文化品位。而现代风格不仅注重居室的实用性而且还体现了现代社会生活的精致与个性,符合现代人的生活品位
简洁的电视背景墙提升了房屋的质感,大理石纹路的瓷砖配以布艺的金属灯具是整个空间的点睛之笔,整体在沉稳中又不失活泼
木色为主调,简洁的造型是现代的代表。卧室家具颜色以白色为主,以橙色的床品为跳色,温馨又美观
依旧延续客厅的色调,现代的餐桌搭配金属的灯具,使地额空间相得益彰
布置较为温馨作为孩子的私密空间,主要以功能性和实用舒适为考虑的重点,通过线条的造型、床头的挂画来做点缀,塑造出主人心中温馨自然的感觉,格调大方,线条清爽明快
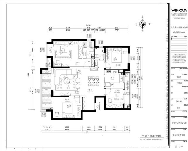
原始结构优缺点:1.四个卧室空间都较大2.次卫干湿分离3.主卫门正对床改造方案:1.更改主卫门的位置2.北阳台作为洗衣、晾晒阳台
推荐阅读
- 高新超两千平米地块使用权成功出让|土拍快报 | 乐居买房讯
- 鞋柜|52平米小户型,全屋色调太舒服了,简洁清爽又雅致,值得参考
- 北欧|87平北欧混日式风将客厅打造舒适的家庭影院,阳台设计成品茶区
- 小复式|70平小复式二居室独特的民宿元素,形成独特清新的生机与舒适气息
- 我爱我家|我爱我家谢勇:相寓会成为我爱我家生态平台的优势资源
- 总层数|天华置业198.62平米房屋被拍卖,起拍价191.1万元
- 合约销售|正荣地产前四月合约销售额163亿 销售均价1.61万/平米
- 密封罐|做了3年主妇,被我挖到这10个家居品平替,满足需求,用着方便
- 新中式|172平新中式三居室,构成了醇厚的中国韵味
- 样板间|通透感、混搭风、大平层:230m2的现代原木家,到处都是细节!
