今天分享的是一套建筑面积60平米的混搭风小户型单身公寓案例,房子的格局有些类似于长条形,但又是三面采光的格局,所以整个家还是比较明亮的。设计师用红砖墙搭配木质感,来营造出复古而又温馨的感觉,让人羡慕不已。设计师在入户门的边上摆放一个矮鞋柜,满足一家人的使用需求。
屋主把其中一侧的床头柜,换成了一个梳妆台,这样平时使用也会方便很多,而且梳妆台也可以起到床头柜的作用,反正高度差不了多少。
餐厅位于客厅的角落处,卡座和电视柜连通起来,显得更为简洁。把餐厅放在窗户的边上,吃饭的时候也会觉得更舒服
卧室外的阳台除了满足晾晒的需求外,设计师还在底部做了书桌柜,让阳台成为一个书房工作区,避免屋主在家不好办公的问题。
入户没有玄关走廊的户型,设计师在入户门的边上摆放一个矮鞋柜,满足一家人的使用需求。沙发背景墙做了红砖墙的设计,非常独特。
卫生间的面积不大,但也用浴帘和挡水条做了干湿分离的设计,洗手台的侧方还做了壁龛的设计,让卫生间多出不少的储物空间。
客厅的电视背景墙被刷成了浅灰色,客厅边上的阳台改造了榻榻米地台,也让家里多了一个备用卧室。日式格栅门给客厅增添了禅意感。
厨房是个狭长的空间,橱柜也做了一字形的布局,白色的吊柜搭配木色的地柜,整个厨房空间给人一种简洁又舒适的感觉。
厨房的外面是生活阳台,设计师把两者打通,让空间显得更为宽敞,洗衣机和缝隙柜结合,能够满足洗衣服的需求。
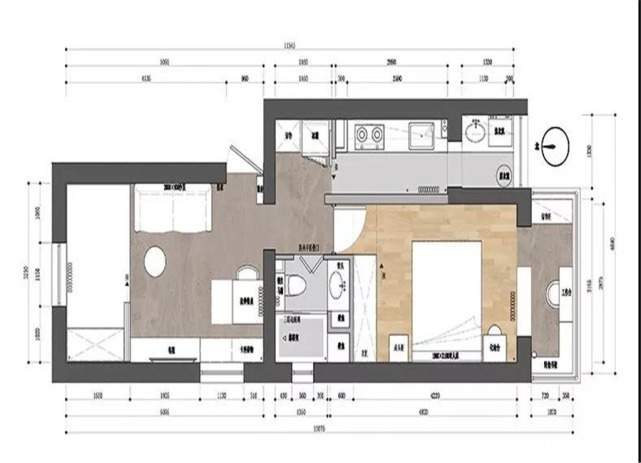
【户型图】一套建筑面积60平米的混搭风小户型单身公寓案例,房子的格局有些类似于长条形,但又是三面采光的格局,所以整个家还是比较明亮的。
推荐阅读
- 二居室|83平混搭风二居室,来了一次室内的踏春之旅
- 吊顶|114㎡混搭风把北欧、日式和简约风融为一体还挺好看
- 红砖墙|60平混搭风设计用红砖墙搭配木质感,营造复古而又温馨的感觉
- 二居室|90平混搭风二居室,客厅居然以纵横的梁木形成随意自由的空间感
- 装修|81平混搭设计效果不一般,两室一厅装修,独特的设计,超美的!
- 杭州|中国女孩远嫁泰国,住混搭风豪宅,光佣人就有6个!真是羡慕了
- 香芋|82㎡北欧混搭风小家,生活本该如此缤纷
- 装修|161平混搭四居室,儿童房让孩子享受在这“动物世界”氛围里
- 餐厅|135平混搭风的设计,餐厅做了一排柜子,橱柜是美式的
- 色调|131㎡优雅独特的轻奢美,混搭风也高级又好看!
