??优点是阳台变为家庭成员私密空间,缺点是侧面采光会有时间限制,另外晾晒、收取要穿过卧室,略显尴尬;

??还有就是杭珹未来中心类三房朝南的格局,受限在约6.7米的南向面宽,只有双开间阳台和两个卧室朝南,但是第三个类南向的卧室做了个“L”型的侧边窗,兼顾到了南向采光。
??大阳台、大飘窗和三房朝南其实是典型的适宜江南气候和居家性的代表。
??| PART 4 |

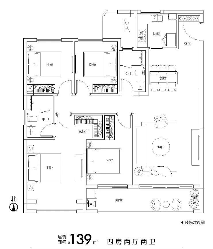
??上图这个户型来自鼎湖未来社区,这又是一种动静分离的139㎡户型的演绎。
??这个户型的亮点在于把动区的客餐厨,甚至公卫和静区的四个房间几乎泾渭分明的彻底分离,相当于拿出一半面积为卧室区做了个小四叶草。
??动区LDK餐客厨一体化设计对低龄小朋友的沟通交流友好;动静分区则对家庭其他成员活动对高龄小朋友干扰降到最低;
??举个例子:如果是低龄小朋友,饭点可以在厨房附近玩耍或功课,家人便于照料;
??而对高龄小朋友来说,在客厅看电视,或者聊天,即使稍微嗨一点,动线拉长后最里面小孩房里的小朋友哪怕是在复习功课,所受到的噪声也能衰减到最低;
??而阳台和次卧、客厅双联设计对老人很便利的晾晒也有莫大的好处,甚至主晾晒区与老人房(次卧)对应,与客厅略有遮挡,并不会一览无余的正对。
??| PART5 |

??当然三房朝南还有一种形式的变形:四开间三房+一厅朝南,见上图的江晖府约139㎡户型。
??虽然仅是过程稿,但大致上可以判断出户型的优缺点:
??首先这应该是一个进深、面宽比接近或超过1:1的户型,南向三卧室与客厅形成四开间朝南的绝佳格局;
??由此足以安排一个不小的双联阳台,并与外立面拉平形成统一的公建式外立面(沁园、凤起潮鸣、柳岸晓风都有类似设计),除了北面书房可能稍小外,这个户型是没有明显弱点的均衡户型。

??过往的案例,奥体创世纪约139㎡做的还要硬核;
??三房+客厅朝南双套房设计,南向面宽甚至达到14.2米+,即使最小的北书房也能达到2.8*3.6米的11㎡,除了餐厅面宽稍小,还真找不出什么毛病。
??| PART4 |

??设计不分好坏,仅仅是对每位业主而论适不适合自己。
??当然对于杭州大多数热点板块,似乎开发商也不用发愁房子卖不掉,户型研究可能都不会用心考虑;
??但应该明确在一轮轮的放松政策信号背后,可是暗藏着对市场下行的担忧;哪怕是杭州这样的好城市,热点板块和非热点板块的冷热两重天也在加剧。
??这里要说的是,不要逼着客户用抛弃购买来倒逼产品研发,好的品牌第一步一定是通过好的设计实现的。
??139㎡户型值得好好研究,更何况这个面积段需求也是日益庞大的。
??来源: 杭州房叔
【购房资讯轻松享,快来关注乐居网】
文章来源:杭州房叔
推荐阅读
- 玄关|\开门见厅\户型不好,怎么办?3种妙招,化险为夷,让你爱上
- 客厅|最小51平米!市内六区纯新盘,首开户型曝光!
- 销售额|天津好多新楼盘降价,到底能不能买?
- 小户型|不怕宅基地小,150平也能建双拼别墅,两兄弟完全不用争吵
- 防水|楼盘只要价格足够优惠,卖房子还是不太累
- 设施|严格控制大户型高档商品住房用地,建设筹集公共住房54万套
- 成龙|?成龙代言顶级楼盘遭调侃,业内人都不看好,指出项目3大硬伤
- 楼盘|验资1000万?佛山千万豪宅井喷!江景大平层为何这么香?
- 成龙|成龙代言顶级楼盘遭调侃,业内人表示不看好,指出项目3大硬伤
- 楼盘|五一沈阳楼市前瞻:政策提振信心 多个热门项目开放、加推看点足
