本案是一个137㎡的2室2厅装修案例。现代简约的风格,利用格局的变动打造极具社交互动感的空间。精简的线条,流畅的动线,延伸了整体空间的纵深感。同时以素雅的基调,靓丽的色彩吊坠,打造自在通透又简约得恰到好处的居室空间。
家人们在这里交谈、工作、游戏、阅读、用餐,丰富而生动的场景,为客厅注入活力。
客厅运用了米黄色作为主要基调,客厅与餐厨相连,既是会客厅也可以是用餐的社交厅,大大增添了空间的互动性,鲜明的体块、灵动的分割。
浅灰色的背景,竖立吊灯,大开窗,确保空间的清新感与光线充足。窗台可以打造成一个喝茶、读书的休闲场所。
橙色、黄色的软装点缀,为卧室注入了活力与灵动感。床头柜换成了梳妆台,大大提高了空间利用率。
灰色大理石瓷砖搭配黑色金属材质,简单纯粹。简约的设计打造出一个开阔宽敞的空间,注重功能与审美上的自然延伸。
厨房是L型的格局,哑光原木色既自然又简洁,搭配亮面银色家电,保持了一个现代又干净的视觉效果。
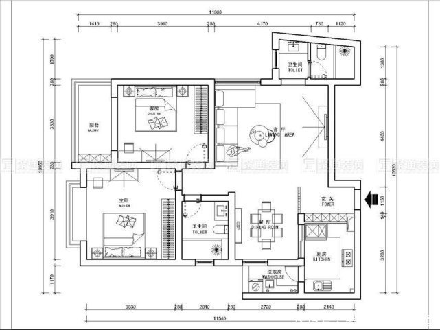
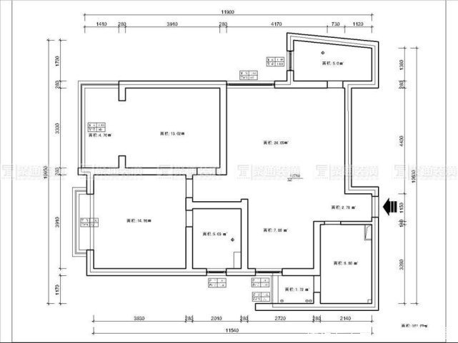
平面布局图
推荐阅读
- 环比|太原第17周普通住宅市场供应面积达3.20万㎡ 环比上涨14.9倍
- 北湖|郴州建工北湖名著已取证!备案销售价7000元/㎡起
- 二手房|为什么越来越多人喜欢90㎡的房子,太聪明了!
- 客厅|85㎡两室三口之家,客厅卧室互换成就光线
- 时尚|89㎡现代简约,黑与白、绿植与原木,打造时尚高级的舒适
- 舒适|168㎡现代艺术宅,摈弃繁杂与浮夸,轻盈舒适的设计
- 宅基地|抢手!梧州藤县繁华地段一宗126㎡宅基地拍出262.6万元高价
- 商品房|西安2盘公示:均价2.36万/㎡,金茂纯新盘终于登场!
- 龙华商业中心|总建面161万㎡,又一“巨无霸”旧改来了!龙华商业中心规划修改
- 户型|12×9米二层现代别墅,占地仅有110平,造价仅需20万
