今天小编就为大家介绍一套96平米的装修案例,原来三居室还可以这样装。这套装修案例中运用了很多装修小窍门,那么我们一起来看看吧!

北欧风格地毯直接将空艇打造成为舒适的玩耍区,让家长和孩子有更多的互动空间。

主卧比较喜欢的是梳妆台上面的隔板和挂钩,让包包和帽子也能整整齐齐地存在。

榻榻米书房最是感人,办公、看书、玩耍、父母过来住都可以在这里实现。收东西的功能也是一等一的棒。
卫生间的面积虽然比较小,但却是整个家居空间中十分重要的部分。卫生间装修不仅要保证基本的生活需求,还要确保舒适和安全。

除了色彩搭配,收纳也是很重要的,懂得收纳,才能拥有整洁干净的卫生间。
餐厅在家里也是很重要的,毕竟吃饭的时候都要去餐厅。在一个环境好的餐厅里面吃饭,整个人的心情都不一样哦。所以,在餐厅的装扮上同样要下功夫哦!

餐厅靠墙是小卡座的造型,简单好看,搭配原木餐桌椅也不会很拥挤。

餐厅和厨房之间的隔墙做了一排边柜,平时随手收东西都比较方便。

虽然整体都是浅色调,还是被点缀的粉色萌到了。特别是家里的大理石地板,闪亮帅气的不要不要的。
厨房台面装修的时候,建议大家一定要安装挡水条,洗菜难免会有水流淌到地面或者渗入墙面,如果不及时清理后期处理起来会很麻烦,所以厨房台面装修一定要安装挡水条,这样收拾起来会非常方便实用。.

厨房比较细长,不仅在门口放置冰箱远离火源,还设计了小立柜即解决了出入口的小物件收纳。
儿童房装修应该以孩子的健康成长为宗旨,所以要隔音也要考虑到给孩子足够的成长和活动空间。但是一定要选择环保型的装修材料,而家具在棱角方面的处理也一定要注意。风格上来讲儿童房可以装饰得活泼一些,所以在色彩的选择上可以选择鲜艳一点,也可以先咨询一下孩子的意见。

孩子房间是可爱又帅气的模样,衣柜采用了推拉门的方式,节约了不少空间。
有的户型在设计之初没有考虑到玄关,导致走廊进门就是客厅,这时进行玄关装修设计就可以做一个隔断来做空间的划分。隔断可以做成鞋柜,鞋柜+收纳能够让玄关显得整洁,还特别实用。

玄关柜子占据整个墙面,一直延伸到客厅,放鞋子足够了。

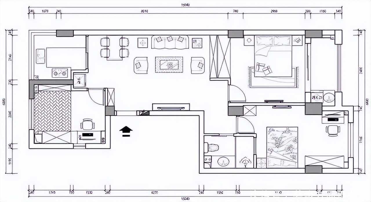
【 小立柜|96平北欧风三居室,玄关柜子占据整个墙面,一直延伸到客厅】户型图
推荐阅读
- 小院|客厅+餐厨区+堂屋,15×21米二层小院,可自住亦可做民宿
- 宁波|名列前茅,独占鳌头!宁波这些小区实在太稳健了!
- 定制|中国定制橱柜的“歧路”与“正路”
- 南京楼市|南京楼市小阳春凉了,南京楼市核心区房价都跌了2000元
- 小三|买房和小三同居:在同居期间,小三买的房子是不是属于丈夫的?
- 别墅|苏州楼市小阳春还没来,苏州炒房客心都慌了
- m浅浅改造一个小院(篇三)—— 最新工程进度及前后对比展示
- 房产证|好消息!大兴又一小区判定为历史遗留项目,可以申请房产证啦
- 金科|同小区的业主,为什么有十倍的财富差距
- 广州市|成都90后小夫妻,辛苦打拼买了北京100㎡婚房,20万实现全屋大变身
