一套164平米的五居室,装修花了大半年,装完效果美翻了。那么,下面就给大家介绍一下164平米五居室欧式风格的装修设计。三代人居住,夫妻二人+父母+儿女三人;作为第二居所来使用;满足基本功能需求即可,风格要求较高,喜欢较奢华的欧式风格,整体色调以浅色为主。
客整体风格色调以浅色为主,家具以欧式为主,色调较暖,整体空间比较温馨,满足女主人的颜色喜好;卧室的主要功能是休息,属于私人空间,所以卧室装修不必有过多的造型,卧室装修越简洁越好,墙壁可适当做些点缀,还要注意墙壁材料和家具的搭配得当。卧室装修设计风格可以根据窗帘、床罩等软装决定,它们的色彩影响了卧室的风格,装修的时候要格外留心。
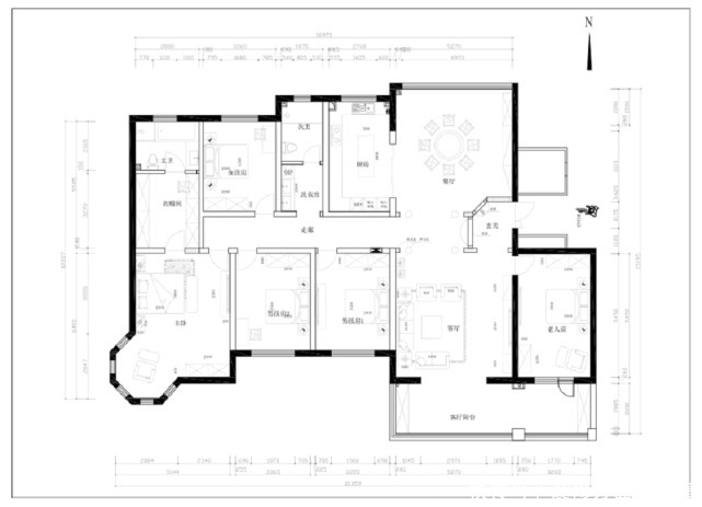
卧室空间较大,除基本卧室家具外,搭配床尾沙发,增加空间丰富性,提交功能的丰富性;;
孩子已结婚,整体空间搭配以稳重为主,同时也增加的蓝色的硬包及壁纸,丰富了材质和颜色,提高空间的层次感;卫生间可以考虑干湿分离,这样使用起来也很方便,而且也有效地防止了一些安全隐患。我们都知道湿滑是卫生间的一大特点,所以防水防潮就很关键了,咱们在材料的选择上一定不能“省”,防水就更不能忽略了。
卫生间空间较大,要满足淋浴房及浴缸的需求;增加了大量的大理石及雕花,让空间更加丰富;餐厅是家里比较特殊的地方,一般只有在吃饭的时候才会使用。需要着重强调餐桌和饮食环境的布置。餐厅的布局方式有独立型、厨房餐厅一体、餐厅客厅一体、厨房餐厅客厅一体四种,在装修时可以根据家中的实际情况来决定。
餐厅添加圆形餐桌,提高违和感,增加空间丰富性;厨房装修灶台放在哪?厨房安装灶台时建议大家要和窗户保持适当的距离,要考虑得到自然风对灶火的影响,避免可能出现的火灾危险。
颜色相对较少,整体颜色较为干净,家具比较稳重,由于是老人来使用,相对较简单稳重,减少杂乱孩子是一个家庭中最脆弱最需要保护的,儿童房的设计是让众多父母十分费心的一部分。不论从装修设计、家具选购等方面都跟大人房有很大的不同,目的就是给小孩有一个安全健康且能自由成长的个人空间。
孩子还在上学,颜色以素雅为主,整体空间给人以安静稳重为主
推荐阅读
- 新古典风格|138平欧式新古典风格设计:如何演绎一幕温柔精巧的贵族气质
- 三居室|176平欧式风三居室,看起来格外亮眼
- 小面|9×12米小面宽欧式别墅,外观时尚大气,布局简约实用
- 三居室|145平欧式三居室,色调沉稳简约时尚有韵味
- 客厅|11×10米二层简约欧式别墅,挑空客厅设计,居住更舒适
- 欧式|125平现代风三居室,欧式电视墙和草绿色碰撞出不一样的火花
- 欧式|开放式客厅+阳光房+双开门厨房,15×11米二层欧式别墅
- 收纳|76㎡轻奢欧式风,复古又优雅,小户型也能这么上档次!
- 二居室|76平欧式二居室,小户型用欧式不仅没有土豪感还很温馨
- 三居室|160平欧式三居室,夜幕下一盏鹿角壁灯让人觉得温馨
