好多人都喜欢那种复杂的装修风格,感觉那样的装修高端大气上档次,其实不然,过于复杂的装修让室内空间臃肿且凌乱,而且特别浪费钱,打扫也是个难题。不如借鉴这套107平米的装修方案,采用美式风的装修,装修效果简直好到爆!

灰色小沙发很耐脏,摆放位置与电视保持的距离也是不远不近。

石材的电视墙面略显粗糙感,搭配壁炉造型更加展现美式粗犷随意感。

小碎花卧室的布置很文艺,简单扣了个造型很有立体感。

吧台隔断餐客空间,形成明晰的功能分区,浅浅的黄色很温馨。

整体浅黄的色调很温馨,小餐厅显得简洁又整齐。

【 装修|107平浅黄美式风三居室,小餐厅显得简洁又整齐】L型的厨房刚刚好放下4个吊柜,整齐又大方。

一边的小阳台改成开放小书房,借着充足的采光办公休息两不误。

为两个宝宝准备了双人床,一起嬉戏成长,将来感情会更好。

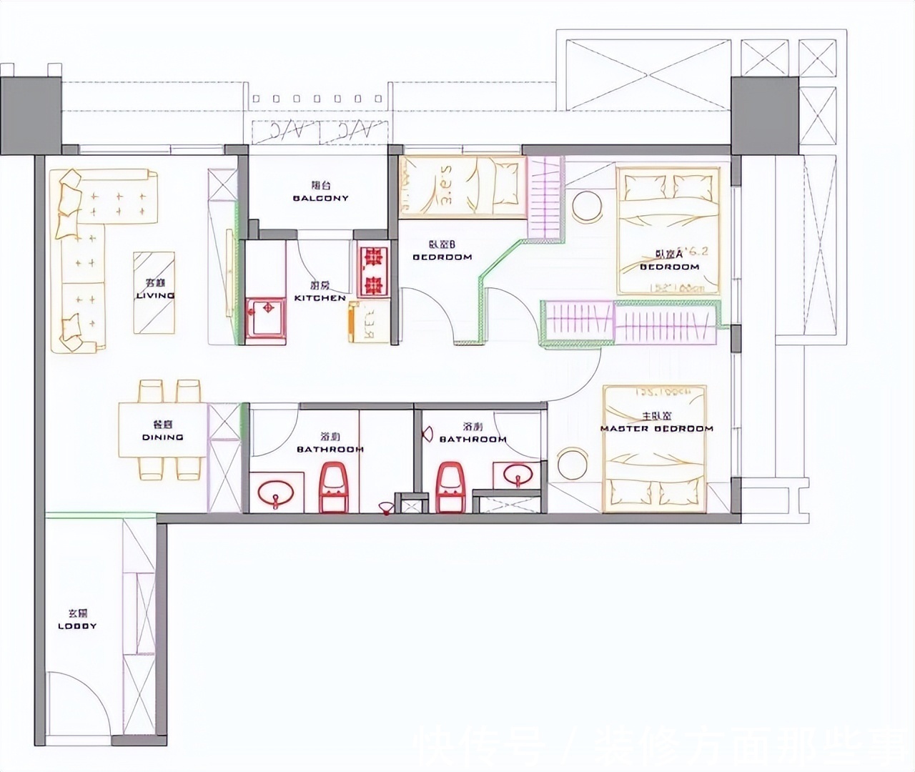
户型图
推荐阅读
- 永州|大客厅+占地仅103平+东墙无窗,11×8米二层别墅,实用又舒适
- |房屋拆迁赔偿260万,女租客要求平分拆迁款,我住15年,有感情了
- 三居室|176平欧式风三居室,看起来格外亮眼
- 装修|家装 篇九:智能家居装修毕业经验总结
- 海口|第1季度海南房价地图出炉:海口房价约15661元/平,同比下降…
- 负增长|【成都成华区】龙湖三千里90平米套三7折151W起拍!
- 房产证|土拍快报:华润置地竞得高新超1.6万平米涉宅地块使用权
- 房地产行业|平反了,平反了,央行给房地产行业平反了
- 规划|普湾经济区超2万平地块规划公示
- 灯带|这些翻车案例,让我相信,装修效果好不好,与钱多不多没关系!
