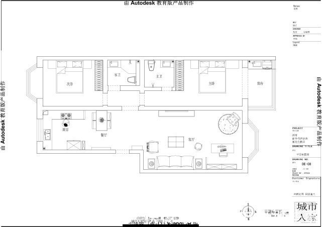
本案的业主是一对年轻的夫妻,女主人喜欢清新的暖色调,偏爱清新北欧风格,希望家里干净整洁,看起来空间比较大,所以收纳空间要足,空间要上明亮通透。原始户型是较为常规的两室两厅一厨,满足家庭居住需求,屋主希望整个房屋空间得到更好的利用。虽然入户门厅较小、厨房及餐厅空间不足,特别是客厅空间过于中规中矩。但设计师通过小小结构的调整,让房屋变得更宜居。
电视墙整个墙面和次卧隐形门采用整墙板装饰整体性非常强。
原始规划客厅面积偏大、采光较弱;设计师调整客厅的主要动线
客厅沙发背景采用乳胶漆调色,和石膏线条搭配让空间的色彩充分发挥清爽与宁静的明快效果
软装选择上,有沉稳的粉蓝、淡雅的木色,让空间更富有色彩的层次感。
厨房的色彩是原木色和白色搭配,这两种本身就有一定对比性的色彩,显得非常柔和。
深色的实木桌椅搭配时尚复古的金属色吊灯,营造了一个优雅的餐厅基调。
在客厅区域增设屏风,延伸视觉感,从而扩大客厅面积,并增设书柜储物
采用木质隔断将书房设置成半开放式,进一步增加客厅采光
推荐阅读
- 购房置业|进场施工!阳光城重拾福州“豪宅梦”,南二环搁置29年项目即将重启!
- 长沙|拿证速递|4.24长沙仅1盘获证预售 浏阳河旁低密社区72套房源入市!
- 沈阳|因为限高,而迟来的大东“新地标”,东一环商业起风了
- 沈阳|为何,全球顶级豪宅大多均位于城市中心?
- 沈阳|沈阳“一河两岸”未来最值得关注的是哪个地方?
- 棚户区改造|7年棚改潮水变向,贵阳这类房屋征收补偿,如今还与这些有关
- |东北三环太阳宫地块直接进入土拍流程,北京最豪横的地终于来了!
- 空间|温州四口人住200㎡,局改后满屋阳光,顶层套房惊艳!
- 封阳台|高层住户封阳台,选平开窗还是推拉窗?收下这份关于封阳台的建议
- 绵阳|有意思,阳台还能这样封:护栏+推拉门,开放和封闭式随意切换
