装修过程中最重要的就是奠定整个家庭的装修风格了,我家142平米的新房拥有三居室,于是我参考了很多装修案例,觉得142平米的三居室,运用现代的装修风格效果会是怎样?同时和大家分享一些装修注意事项和技巧,一起跟小编来了解一下吧。
浅粉色的硅藻泥墙面在光线的过滤下,空间的纯粹质感越发沁人,洋溢着青春的气息,端庄大气。
每一处的软装搭配都透露着主人对品质生活的追求,拥有小资情调的家居情怀,很有格调。卧室装修地面铺什么好呢?如果卧室装修打算铺地毯,建议地毯别选太厚的,虽然厚地毯柔软舒适,但因为过厚的地毯易积尘,在日常生活中需要经常打扫。另外厚重的窗帘也是比较容易积灰的地方,因此建议大家尽量别用。
儿童房采用白色硅藻泥墙面,床上采用橘色家纺搭配抹茶色柜子和壁画,清新又有活力。
暖色系的床头搭配粉红色床品,墙面一边选择时尚雅致的吊灯一边选择个性时尚的壁灯,营造出一个温馨精致的睡眠空间氛围。
舒服采用浅粉色和白色为主色调,配上黑色收纳架,简约又好看!
采用现代风格装修,整体效果简单又不失大气
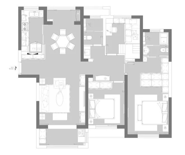
户型图
推荐阅读
- 二居室|55平北欧风二居室,这个家里的储物空间还是很有看点的
- 高端大气上档次|160平现代风三居室,将投影幕布藏入天花板,高端大气上档次
- 别墅|占地90平米,简欧三层别墅,实用经济,小占地建好房选这款
- 次卧|120平旧房将美式元素融入,让空间充满现代自然的气质
- 硅藻泥|79平古典二居室,土豪金卫生间居然不显得庸俗
- 三居室|133平新中式三居室房子,没确定这风格不是黑暗风
- 北欧风|96平米北欧三居室,玄关的换鞋凳还有一个小小的置物台,实用
- 政策|南平出台公积金购房新政,福建楼市政策接连不断!
- 园林|为了结婚,上海小伙爆改35平老公房,变身4层9房园林别墅婚房!
- 青岛市|楼市的网络营销积极,可效果平平
