
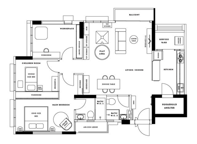
99平米的老房改造特别符合业主的要求和北欧特色
推荐阅读
- 租赁|北京:保障性租赁房将全装修成品交房,人均面积有要求
- 北京市|定调降首付,天津会出政策吗?
- 新盘|真正的"海淀北"新盘入市!价格倒挂近1w、配套成熟!堪称刚需上车福音
- 厨余处理器|96平米北欧三居室,玄关的换鞋凳还有一个小小的置物台,实用
- 北京市|地产法务审计岗位林林总总,要求大不同!
- 淮北|2022年4月21日淮北新房备案23套
- 珍珠泉|北京延庆珍珠泉圣溪湖山庄民宿装修案例赏析
- 广西|北流最大乡镇开发区项目烂尾,农地入市盲目扩张,上千亩土地荒废
- 北京市|11×11.8米农村别墅,小两层造型简单,主体造价23万左右
- 定西|定西楼市,北强南弱,下滑2.3%,连跌3个月,未来的楼市走向如何
