北京的钱先生有一块宅基地:15米×20米,现在拥有这么优越的宅基地可非常难得,但钱先生还是为建房问题每日愁眉苦脸。确实,拥有这么好的宅基地,如果建得不好那可太浪费了,可能会后悔一辈子。
后来钱先生联系到我们,让我们帮他设计一套“完美方案”,我们也不辜负钱先生的信任,给他设计了一栋:15×20米占地137平的中式小院。

没错,宅基地15米×20米,别墅占地仅137平。
设计师并没有盲目追求:地有多大,房子就建多大,而是合理取舍。把房子周围设为庭院,虽然建筑面积小了,但房子的品质得到极大提升。
第一是:一层设大庭院,贴近自然,感受密林修竹的静谧,三层设露台,居高临下,欣赏一览无余的美景,上下配合,生活更加悠闲惬意。
第二是:增加采光面,主要卧室都能朝南设计,采光、通风更好,房间舒适度更高。
第三是:不将宅基地建满,可以节约成本,工期也短,设6间卧室也不用担心住不下。

户型基本信息
占地尺寸:15m × 20m
占地面积:137㎡
建筑面积:368.13㎡
建筑高度:10.20m
建筑结构:砖混结构
建筑情况:设6室 4厅 6卫 1厨 1玄关 1客厅 2衣帽间 1茶室 1棋牌室

平面布局图:
一层
西侧入院,庭院面积宽敞,方便饲养家禽,鸡、鸭、鹅有更多的活动空间。如果没有这方面的需要,种一些花草修竹,放一些盆栽景石,摇身一变,成为安静、惬意的小花园。
南面入户,右边设开放式客厅,搭配通透的玻璃窗,视野清晰明亮,是一个十分理想的生活空间。
设茶室和棋牌室,提升房屋整体功能性,无聊时约亲戚朋友喝茶聊天、玩玩棋牌,生活品质更佳。

二层
二层布局简单利落,设3间卧室,主卧面积宽裕,带大衣帽间和独立卫生间,南面连通阳台,采光、通风、居住便捷度得到保障,家居生活更舒心。
起居室带内阳台,方便晾衣、堆放杂物,不用担心下雨、下雪飘到室内,浸湿衣物、家具和地面,能有效保持室内环境干燥、整洁。

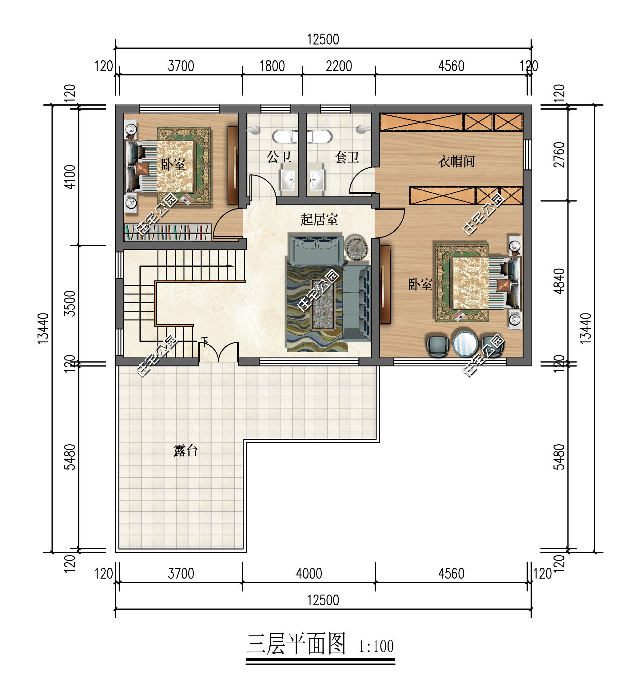
三层
设2间卧室和1个起居室,东面卧室做套卫设计,日常起居更便捷。
三层的别墅必须得留一个露台,因为三层这个高度拥有更宽广的视野,是极佳的观景台,这可不能浪费。

【 小院|古色古香的三层中式小院,15×20米占地仅137平?】关注本号,获取更多户型信息,了解更多建房小知识。
推荐阅读
- 水泥|北京前摇滚乐手有多野?29W打造120㎡的复古之家,办公收纳一步到位
- |古装剧别再拿枯山水代替中式庭院了!奇石怪山亭台楼榭,这才对味
- 三居室|135平现代三居室,将古典融入纯白空间分外和谐
- 购房置业|有人说:买房最大的坑,就是一楼带小院的房子,你怎么看?
- 二居室|76平现代风二居室,白色的墙面搭配上木地板犹如古朴时尚的家居
- lemon|2022三里屯太古里摩登派对开启打造"文艺三里屯"
- 棋牌室|17×15米小院,农村建一栋这样的经典三合院,曾是多少人的梦想
- 二手房|了解了杭州储备地块的特点才知,为什么太古、港置迟迟未落地杭州
- 保利|一楼40㎡小院,改造花园经验分享,简单省钱还特漂亮,照着做吧
- 宅基地|27×15米二层中式小院,“L”型宅基地也能建成好房子
