如今,生活节奏越来越快,很多人的时间就是金钱,根本没有空余时间。装修的时候更是顾不上,很多人会选择的装修方式,你知道装修注意哪些细节么?今天小编就为大家介绍一下一居室装修,才花了10万的相关案例。而传统的日式装修不同于常见的欧式装修,没有了繁复华丽的花样与纹饰,偏重于原木色的用料,为室内创造出一种自然简约的风范,充满了宁静的禅意。日式装修的选材,重点就在“自然”二字之上,而这种自然也与选材的自然密不可分,更显得自然。
设计师侧重生活,以简约的手法勾勒空间,没有繁冗多余的色调和修饰,简单大方。格局上更讲究人性化与思维化,呈现出一种规则美。
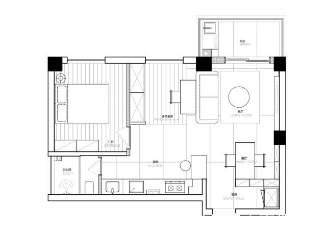
客厅的设计围绕生活展开,地面采用实木地板与深灰色砖结合,接近生活的朴质营造家庭氛围
主卧以浅灰和白色为基调,自然清新,跳跃而复古的黄色床靠背,没有多余的繁复造型。纯白色的床品搭配表达温婉闲适的现代都市生活质感,
在卫生间空间功能分布上,把洗手台外置,利用置顶的黑色透明玻璃将厨房洗菜盆与洗手盆隔开,形成两块不同区域,节省空间之余也互不干扰。
干湿分离把空间合理地利用起来互不干扰,通透大方
餐厅作为厨房与客厅的连接,在色调和材料的使用上,保持了空间的连贯性,同时,吊灯与餐椅恰到好处的相呼应,变化中不失统一。
入门玄关区域植入了一个温润的木盒子,进门区域的玄关与内部空间形成了鲜明的对比
户型主要是单面采光,设计师将公共区域打开,做成LDK式全开放空间,一点都没有浪费穿过窗户的阳光,将卫生间与厨房的位置进行了调整
推荐阅读
- 房价|房价这么高,一套120平米的房子,实际成本才多少?
- 长沙|80后夫妻留港8年归来:平常心迎接后疫情时代,拥抱90㎡的“豪宅”
- 三居室|121平日剧三居室,黄色的懒人沙发与绿植给客厅增添了抹亮色
- 电视墙|115平现代风三居室电视墙是黑色背景+木质边框,还可以这样搞
- 冰箱的臭鱼味怎么去除
- 三居室|135平现代三居室,将古典融入纯白空间分外和谐
- 光影|110平复式现代风格,提升空间的“高级感”
- 打卡|127平简约风三居室将风景带入家中,在家打卡张张都是美图
- 婚后房子加女方名字要平分吗
- 160平米房子算大平层吗
