今天小编介绍一套105平米的三居室美式风案例,亲朋好友来参观都是一脸羡慕的表情,房子虽说不算大,但装修之后特别敞亮大气。
电视墙以简洁的壁炉造型勾勒在色调和造型上展现空间的层次感
浅灰的底色点缀亮黄、浅蓝为舒适的客厅增加简洁的时尚感
蓝白地毯规划出待客区域单色的布艺沙发看着就觉得柔软舒适
异形吊顶设计增加了视觉的层次感明亮的居室氛围给人十分舒心的感受
钢琴与内嵌式柜子平行一同塞进墙里面
装饰画+开放式收纳增添整体的文艺格调
不大的空间还是设计了一个梳妆台方便女主人日常的梳妆打扮
穿过衣帽间收纳后面就是主卫灰色的大砖铺贴亮堂又有舒适的视觉感
石膏壁炉增设了餐厅展示功能简洁的造型独具美式特色
贵气小圆桌搭配圆形勾花吊顶金色吊灯聚焦所有的视线
拼花小地砖显得格外小清新一改油腻多烟的厨房形象
五彩的墙面装饰亮了仿佛进入了童话的世界
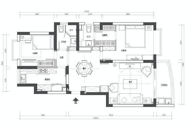
户型图
推荐阅读
- 河南|农村“一户一宅”有“新要求”?村干部提醒:房屋面积别超167平
- 中国武夷|保定楼市看房日记:东湖片区高端跃层带平台的大户型二手房
- 杭州|浙江杭州楼市现状,临平区、余杭区房价未来
- 长沙|青山湖科技城精装新房限价25900元每平米,云城未科36000真香!
- 陈怡|首付买了100平米的婚房,女方母亲要求全款购买,否则就要收30万彩礼,我该怎么办?
- 曼哈顿|曼哈顿房市一季度销售破70亿元,公寓平均售价同比上涨19%
- 租赁|如今农村盖房不用红砖、不请工人,3天盖好200平别墅!太聪明了!
- 保障性住房|45天!昌平再次刷新新盘入市最快纪录
- 天津市|旅顺超1.4万平米用地规划公示 容积率为1.14
- 三居室|170平三居室白与原木色护墙结合,加灰色家具碰撞出现代简约风
