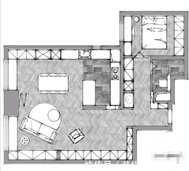
如今,生活节奏越来越快,很多人的时间就是金钱,根本没有空余时间。装修的时候更是顾不上,很多人会选择的装修方式,你知道装修注意哪些细节么?今天小编就为大家介绍一下一居室装修,才花了9万的相关案例。改造后的平面图。设计三大思路:1、拆除卧室与客厅、厨房之间的墙体、打造客餐厨一体空间,满足开阔的操作需求,也使得餐厨空间更加明亮,同时便于设计储物功能;2、调整卫生间歪七扭八的结构,让出走廊空间来做储物柜和放置洗衣机,把洗手台和卫生间他离,满足人同时使用也互相不会干扰;3、储物功能分区管理
一个完美的读书角。光无垠的壁灯和深蓝色墙面简直不要太配。
壁挂马桶,便于清洁。马桶上方的区域不想浪费就做了一个700mm宽度的壁龛用于收纳。
餐厅空间以蓝色和木色为主,白色和黑色为点缀色。采光条件优渥,并且可以放下1800mm的大餐桌,兼具高颜值与实用性。
因为马赛克砖已经够繁琐了,所以墙面上只是设计了简洁的隔板,让厨房空间简洁、干净。高低台面(灶台低,水台高)的设计业主表示使用体验非常好。
改造后的户型图
推荐阅读
- 二居室|75平北欧风二居室,居然在客厅电视背景墙做收纳
- 华丽|110平中式风三居室,轻奢儒雅的华丽气质
- 调规|东湖板块调规!成师附小旁新增一幅优质宅地
- 当事人|上海一超市哄抬白菜价被查
- 二居室|89平代风二居室,餐厅与儿童房之间的墙上凿出了窗洞还能这样搞
- 艺术感|100平现代简约风二居室,将艺术的跃动之美赋于空间之上
- 中式|172平新中式你三居室,沉淀千年的东方生活美学徐徐向你展开
- 书房|126㎡现代极简装修设计,那叫一个高级,给我30万我也这么装
- 大理石|180平美式四居室,电视墙用大理石简约而不简单很高级
- 一栏|夫妻办理公租房资料年审有结婚证不行还得户口本上写“已婚”?
