本案为两室一厅一卫80㎡户型,客厅的面积还是蛮大的,有充足的发挥空间,业主不喜欢太过复杂的设计,但又特别偏爱于黄色,因此结合业主的喜好,设计师专门设计了这套简约风格,在黄色的衬托下,倍感温馨,今天我们就一起来欣赏这套80平简约风毛坯房整体装修效果图。
客厅说明:墙面涂刷了淡色多乐士哑光油漆,整体地面是800*800地砖,电视背景墙则刷了一整面的深灰蓝色墙面,搭配白色的电视柜,凸显出独特的品位,特别亮眼的就是黄色窗帘,搭配北欧式的木椅子,凸显出活泼、温馨的特色,又有一种小清新。
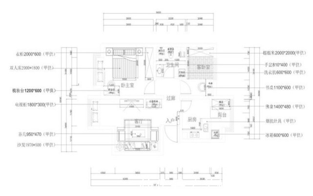
厨房说明:由于厨房的面积比较小,为了扩大厨房的使用率,着把阳台利用上,让整个厨房都能充分利用,而且筒体白色的橱柜,让厨房显得整洁干净。
卫生间说明:由于卫生间的面积比厨房还小,但又要同时满足干湿分离的效果,此卫生间为暗卫,没有窗户,考虑到日后的潮湿和采光问题,因此整体通铺白瓷砖,增加卫生间的亮度,而且干湿分离,也能更好的解决潮湿问题,使用更舒适。
主卧室说明:顶面做了一圈角线,窗帘的颜色与床品相搭配,在白色与黄色的调和下,使得整个房间显得简单温馨。
次卧室说明:次卧室与主卧室在设计上有所不同,次卧采用了榻榻米的手法,更加地节省了空间,通顶的衣柜增加了次卧的储物空间。
推荐阅读
- 卫生间|毛坯房到底要不要交物业费?幸亏内行人跟我说了,不然就吃亏了!
- 氛围感|若再买房,厨房一定坚持“6不装”!不是为省钱,是过来人的经验
- 平熨|你好,熨斗!再见了,挂烫机
- 别墅|贵阳一顶豪别墅被法拍!面积上千平方米,起拍价却这样打折
- 销售额|保定楼市:8195元/平米Vs300平米,城改拆迁要房好,还是要钱好?
- 房地产市场|“三板斧”也带不动?全国5.7亿平房子积压,两个月暴增6000万平
- 卷纸|省一毛也是钱 篇五十八:家里断网了,我给厨房一次小小的改造
- 房产证|房企纷纷躺平,地产大佬们都拿的什么身份证?(中)
- 房地产行业|什么是自流平?
- 无锡|这个改善盘将“棚改房”拿出卖了!最小63平米,还是现房……
