
玄关是个独立的入户花园,整体雅白的地面+浅灰色墙面空间,一个端景台+一幅大面装饰画,靠窗一排矮柜鞋柜,底部也做了留空,墙面还悬挂了一面全身镜,整体空间利用得精致而舒适。
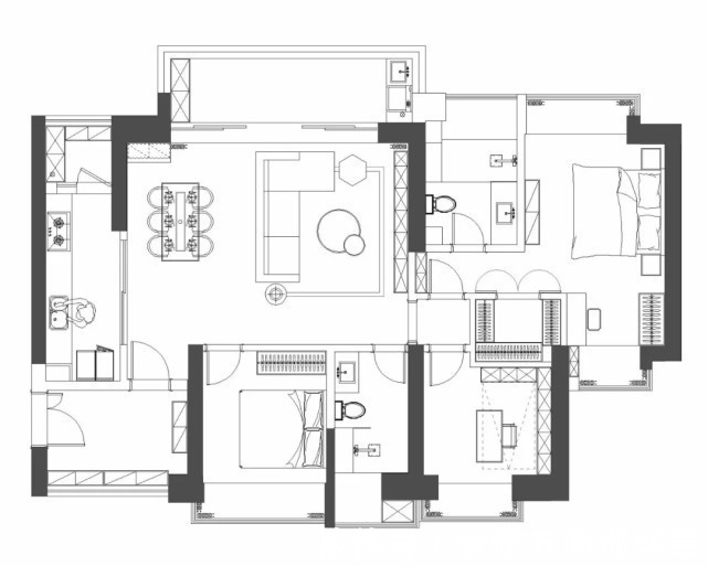
户型图
推荐阅读
- 四居室|140平简约四居室,在简约中添置了些许不简单,令空间质感十足
- 长沙|占地393亩、总6396户,兰州润兰之城总平公示
- 棚户区改造|这个改善盘将“棚改房”拿出卖了!最小63平米,还是现房……
- 房价|均价44000元一平,皇姑两个小区为何房价相差七倍?
- 四面山|彩搭配高燃,平凡又格外显眼,摇滚乐手的家,果然不同凡响
- 中式|130平现代中式三居室,整个空间呈现一种有意境的美感
- 设计|谁说小户型就要将就?快来看看这套70平的设计,满屋子都是亮点
- 落落大方|175平中式风四居室,被中式之美包裹的客厅落落大方
- 客厅|121平现代风二居室,让人置身其中有一种轻松自然的生活
- 二居室|100平简约二居室,高端大气上档次
