这是一套建筑面积为96㎡北欧风案例,男主人喜欢英式田园风,考虑到一家人居住,希望能以北欧风为主,又能体现英式优雅,家要有自己的态度。设计师特地选用了英国皇家蓝作为整个空间的主色调,运用了蓝色的渐变色来装点不同空间,同时在空间上做了改造。
客厅选用了英国皇家蓝作为墙面主色,高贵大方,搭配木地板和白色百叶窗,让人放松,也是一家人三口休闲、游戏的好地方。
与其它空间的渐变蓝色不同,主卧的墙面选择了安静的灰绿色装饰墙面,因为屋主夫妇想要宽敞开阔的主卧,于是拆掉了原来的更衣室,衣柜位置后退。
卫生间的干区和湿区以半透明隔断墙来分隔,时尚又好用,还提升了空间的开阔性。
餐厅与厨房用白色边框的玻璃门做隔断,和两边的收纳柜融为一体,过渡和谐自然,增强了餐厨区的通透感。
蓝白色调,清新淡雅,装饰性壁炉、吊灯、桌布三种蓝渐变,从颜色上打造了空间层次感。
屋主喜欢品红酒,因此设计了这样一个复古风的深蓝色吧台,一面放椅子,另一面是放红酒,休闲收纳两不误,搭配上英伦风的小物件和装饰画,在家也能很有格调地品酒!
厨房呈L型,黑白主色调让整个空间看起来更加整洁明亮,线条感十足。
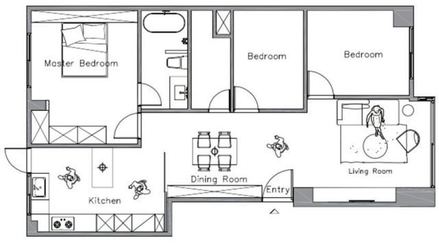
平面布置图
推荐阅读
- 现代感|120平 简约风三居室,简洁实用很好打扫
- 生活环境|123平简约风三居室,原木+白色为空间增添了几分清爽的自然感
- 简约|国潮新家丨120㎡简约风三居室,对调一间房实现LDK+中西双厨
- 别墅|小宅基地也能建好房,这款三层带露台简欧风别墅确定不来看看吗?
- 整体搭配|111平北欧风三居室,一个有声有色的空间,迎接美好的一天
- 三居室|89平现代风三居室,返璞归入低调的奢华,一丝侘寂之美跃然眼前
- 简约风|127平简约风三居室将风景带入家中,在家打卡张张都是美图
- 厨房|55岁阿姨担心远嫁的女儿受委屈,在女婿同小区买下三居室,真霸气
- 租赁|108平现代风三居室,空间充满现代简洁的大方感
- 现代风|112平现代风三居室,木质餐椅让整个空间更加舒适
