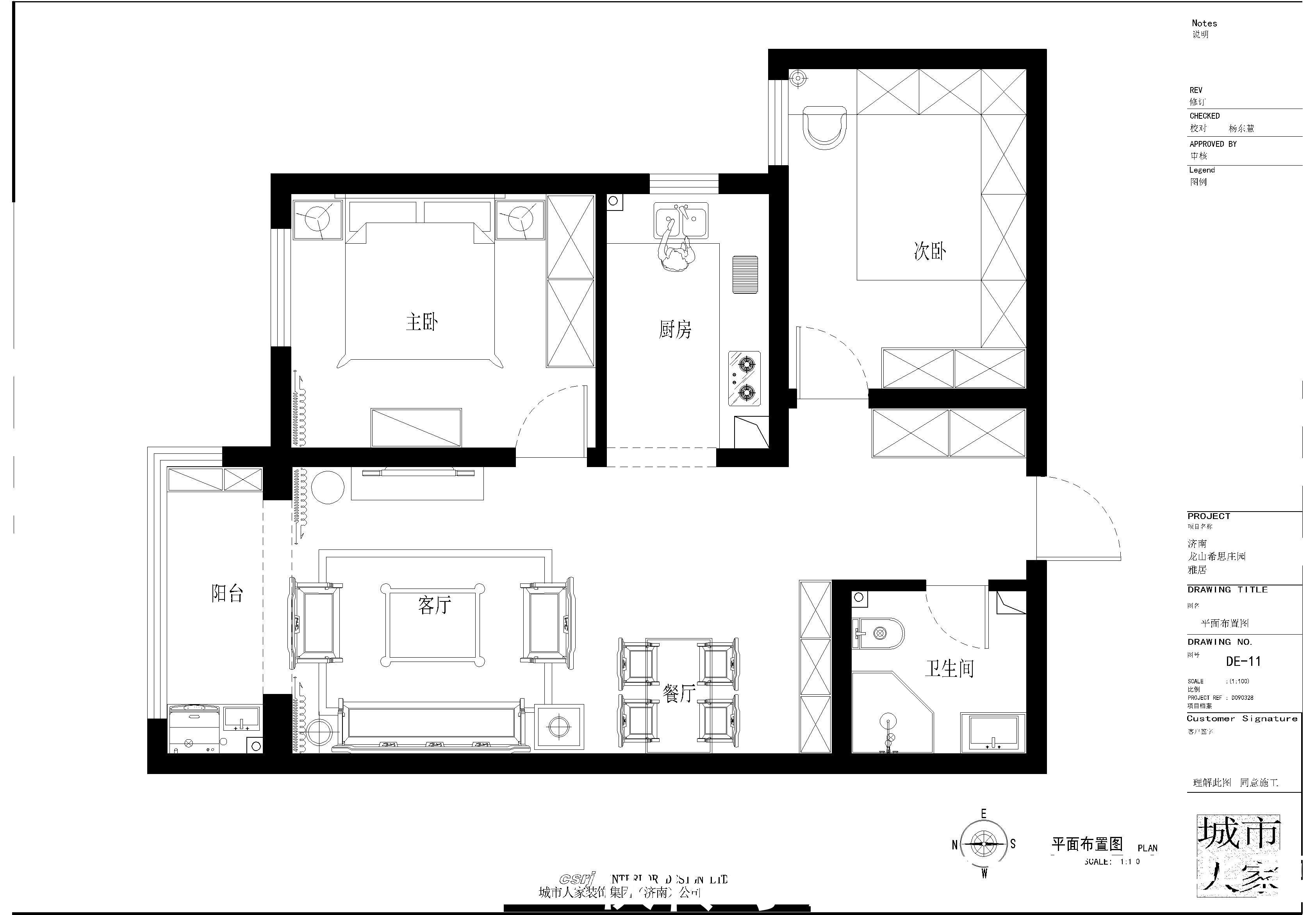
这套95平米的二居室案例选择了中式风的装修,这样的装修和整体户型意外的匹配,中式风格的巧妙利用,让整套房间的效果非常醒目。
【 中式风格|95平中式风二居室,蓝色和黄色作对比,赋予空间表现力】业主比较喜欢新中式风格,本方案设计思路以简洁大方,实用为主;同时运用中式元素和现代相互结合。

在软装上主要用蓝色和黄色作对比,赋予空间表现力。

客厅吊顶做了双层石膏线,电视背景墙采用壁布和木质线条做造型处理

在全屋色调上主要是暖色调,墙面是贴米色壁纸,简单大方;

运用山水元素表现同时放装饰品点缀。
餐厅照明以吊灯为主,灯光要柔和,这样吃饭的气氛好,还能促进家庭人员的情感交流,白炽灯是比较好的,切忌灯光不可以直接照射在用餐人的头部,这样会影响吃饭人的心情。

本案设计强调功能性设计,线条简约流畅,色彩对比强烈。

推荐阅读
- 长沙|长沙今日3项目认筹中!梅溪湖纯板大平层火速推新
- 银行|最小160平米,最大220平米!水西新盘户型曝光
- 硅藻泥|102平北欧风三居室,选择深色布艺沙发只是为了耐脏
- 宁波|Z世代新潮流?宁波一位00后把148平的房子硬改为一室一卫两厅!
- 收纳柜|164平现代风五居室,在电视墙局部定制收纳柜这个挺特别
- 乳胶漆|138平美式风四居室,让家成为身心、精神的归属地
- 青砖|85平现代风二居室,背景墙采用青砖的形式,整个空间更加清新
- 北欧风|117平现代北欧风三居室,简单明快,轻松愉快又舒适
- 一日三餐|130平轻奢风二居室,简约中透露着精致的时尚感
- 家具|120平新中式二居室,简洁中又多了那么一丝丝的沉稳
