本案是一套面积130平米的二居室案例。的装修采用轻奢风的设计,结合业主的其他需求,形成了一个安稳的住处,也让人也能看到生活本有的明媚。
本案例两室两厅两卫,做的是现代轻奢风格,简约中透露着精致的时尚感,但从设计的角度上看,全屋的布局存在很大问题,再加上业主希望能多一些储物空间,颜色不要太艳。
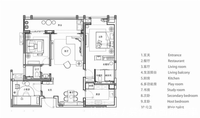
一进门就是客厅怎么装修?可以设置隔断或玄关,避免气冲大门,如果以低柜矮台成型的家具在空间内进行玄关隔断设计,就可以避免一进门就是客厅的情况,低柜矮台还可以起到划分空间的功能。

【 一日三餐|130平轻奢风二居室,简约中透露着精致的时尚感】客厅L型沙发正好满足小两口休闲之需,电视背景墙做了冷色调大理石装饰,从整体的视觉上来看,客厅明亮又有气质
小卧室怎么装修?小卧室装修的时候要注意对空间进行合理的划分,尽量选择多功能或着造型小巧的家具进行摆放,减少家具的占用面积。给卧室床留下比较充足的空间。

主卧配置了卫生间,衣帽柜与卫生间的外观相搭配,玻璃面板加上金属边框,尽显轻奢。

次卧的设计相对更加简单一些,主要采用了灰白冷色调,比较稳重。
有些家庭受制于户型,单独设定餐厅空间比较浪费,这时不妨考虑卡座餐厅,除了一日三餐,还多了个享受下午茶的好地方。卡座餐厅可以搭配两张餐椅,一字型的卡座餐厅适合长方形餐桌,一侧座位是沙发座或者柜子,还能增加收纳空间。

餐区紧挨着厨房,但是隔了一道小窗,我们设计了在窗下做柜子,增加了储物功能,又可以在台面上放置常用的调味品,
厨房是我们烹饪美食的地方,它的好坏会影响我们进餐时的心情。而随着近年来的装修风格改变,厨房已成为集餐厅和家庭活动为一体的空间。所以在装修时越来越受到重视。

厨房的设计与餐厅相搭配,同样采用了灰白冷色调,显得格外稳重又高贵

本案户型:两室两厅两卫本案风格:轻奢户型南北通透,采光很好,格局比较规整,后期需要的改动很少
推荐阅读
- 三居室|130平三居室,客餐厅开放式设计效果简直满分
- 装修|130平欧式三居室,墙纸+护墙板将墙面划分?的?方方正正
- 长沙|2022年2月长沙共13个项目开盘去化74% 成交1309套
- 三居室|98平轻奢风三居室儿童房融入棒球元素,个性而美好的氛围
- 设计|130平北欧风婚房设计,营造精致、纯净的居住空间
- 装修风格|130平三居室,客餐厅开放式设计效果简直满分
- 315易高家居好物节来袭|定制快讯| 好物节","store_news_type":"0","source":"wgrp_44,nbbengnewid_6222696591a7afe9d8647162a39b0201,nbbengdupid1_348a130984d1e6d9,nbbrs_1350_0,r
- 设计师|《梦想改造家》130万红砖房二次改造,老人已住进去,网友:敷衍
- 二手房|130二手房大翻新,庆幸执意坚持了7大决定,硬装完工很有成就感
- 线条处|160平轻奢风四居室,细线条处突出细节,简单而有层次感
