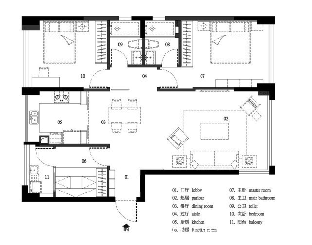
此户型为120平米,两室两厅两卫,全阳户型,采光较好,南北通透。业主在要求风格别致的同时,也要求家中尽量显得简洁一些,不要太过繁杂,因此风格定义为新中式
客厅几乎就是家具、背景墙简单的组合就可以了。墙面装饰的种类很多,比如有壁纸、硅藻泥、乳胶漆等等,每个人喜欢的风格不同,所以在选择上可以根据个人喜好决定。

客厅从视觉上看,简洁效果中,又多了那么一丝丝的沉稳,看上去非常舒适。

整体色调以黑白灰为主,电视背景墙也是以黑白灰大理石作为装饰。同时壁纸颜色也呼应瓷砖的颜色。
卧室的装修以简单为主,尽力营造一个静谧、易于入睡的氛围,不相关的电器绝不入内,同时避免各种过于繁复的装饰,毕竟谁不想睡个好觉呢。

色调以温馨黄为主,装饰简洁,给人的视觉感受也较为平静安心。整个空间没有过多的装饰,床头背景墙花色凸显了传统的中式元素,与时尚相结合,更显优雅气质!
在餐厅中常见的家具有饭桌和椅子,饭桌和椅子的舒适度也影响着人进食的心情。在选择餐厅家具的时候要注重它的美观性与实用性,切忌选择一些不实用的家具。

餐厅紧邻厨房,没有做木门,而是以玻璃门隔开,搭配金属边框,所见之处尽显精致。餐边柜的部分,打造成一整面的展示墙,可以展示一些装饰品,或是收藏一些书籍,实现良好的收纳效果。
好的厨房设计是集美观与实用为一身的,大到橱柜的选择,小到吊顶的安装,我们都需要根据实际情况去考虑,去选购,去施工。毕竟,这是烹饪食物的重要场所,它和餐厅拥有一样的分量。

【 家具|120平新中式二居室,简洁中又多了那么一丝丝的沉稳】简洁大方,没有过多的装饰,定制橱柜时,做了嵌入式烤箱设计,节省了很多空间。一整面的窗户,增加了厨房良好的采光以及通风性能,足够的操作台,在使用上变得更方便很多。

推荐阅读
- 家具|买的期房烂尾了,怎么办?法院:房贷不用还了
- 规划许可证|买的房子是120平,办房产证时却显示140平,现让补20平差价,咋办
- 家具|快讯|美国113年历史家具零售商Whitley关门
- 柜子|买板材打家具,没多长时间开裂了!经销商:使用不当
- 进口|定制快讯|俄罗斯进口家具份额减少10%,本土企业增长30%
- 购房置业|妻子给男同学转账120万,买房时才知存款一分钱不剩,气得当街大哭
- 买家具|有种审美叫“父母的装修”,爸妈觉得好看,网友:土到极致就是潮
- 卫生间|95平新中式二居室,对称、留白、方圆的美展现得淋漓尽致
- 深圳市|深圳最牛“房姐”,坐拥1200套房月入160万,网友:查到底!
- 灰暗|120平现代风三居室,灰色和米黄色让灰暗的空间一下子亮起来
