如果你有20万的装修预算,你会怎么装修一套130平米的房屋呢?这套三居室案例就是个很好的例子,装修效果简直满分,一起来看看吧。
现清晨,阳光透过百叶洒进一床阳光,推开窗,和柔柔的风撞了个满怀,轻风抚过脸颊,飘起长发。远眺这座刚刚苏醒的城市,岁月在不动声色的日子里,都泊在明澈的晨光里,恬静而美好温暖从容的原木,弱化了空间的冷漠生硬,让室内多了一份天然纯粹,色彩、光线、材质的运用,为家寻找一个平衡的元素,贯穿整个空间,让原本灰度的硬装不再显得生硬沉闷。
根据客厅平面的尺寸、形状及自己的生活方式确定家具摆放形式及活动线。面积较大的房间,应该设计成对称式,无论地面、吊顶、墙面造型和家具摆放,都呈现出明显的对称格局,进而达到一种稳重、大方、平和的基调。
??

??
地面选择了一款类似磐多磨质感的水泥地砖,纹理细腻流畅,富有变化。简约沉稳的家饰。
??

??
搭配大理石,并通过简洁极致灯光设计,晕染出高雅、精致的生活空间。
??

??
客餐厅的设计上,扩大视觉的空间感。摒弃繁琐的装饰,以极简的轮廓搭配温馨的色调,简洁大方、温馨舒适,使居家空间回归自然纯粹的状态。
??

??
以大面积的灰白打底,搭配低饱和度的橙色,用金色点亮空间,考虑到日常打理的便捷性。
在进行卧室装修前,要先确定其装修风格。通常卧室的装修风格、布局、色彩和装饰都要以床为中心展开。因为床占据了卧室装修空间的大部分,只有先将床的位置确定下来,才能进行卧室装修风格的选择。
??

??
卧室保持在一种简约的装修风格,在不破坏休息空间的温和氛围下,凸显特色,带给居者最完美的艺术呈现。对于这唯一的休息场所,忙碌一天后,回到家,能卸下身上沉重的包袱,好好地休息一下。
【 三居室|130平三居室,客餐厅开放式设计效果简直满分】?
??

??
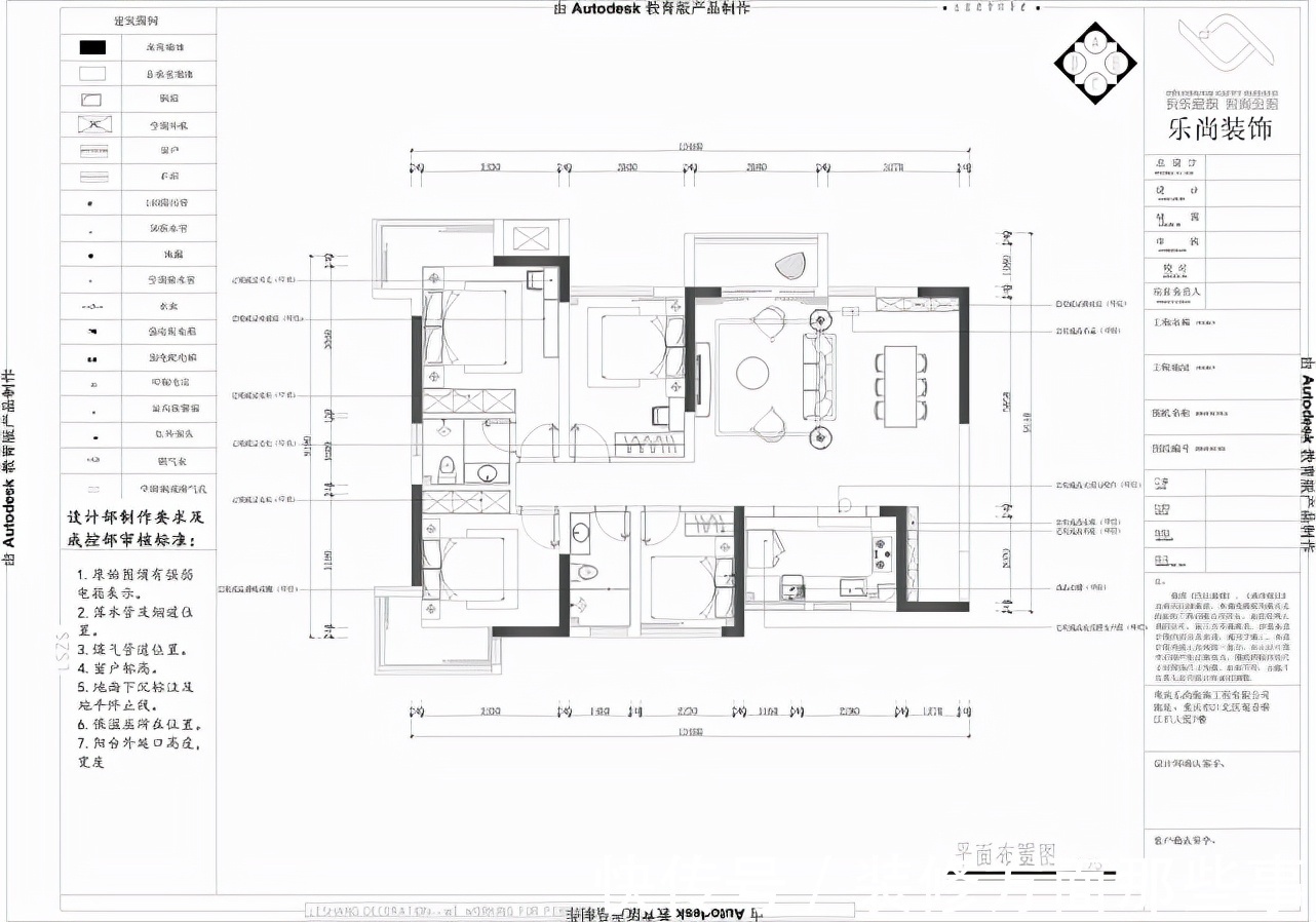
原始户型分析?:1、标准的四室两厅的户型2、整体户型方正,但是厨房较小,生活区也小
???

???
设计改造说明?:1、取消生活阳台,扩大厨房,做开放式厨房通过改造,最大化的使每个空间区域分割明显,增加房间的利用率,实现了业主所期待的开阔、明亮的居家感,使用的舒适感。
推荐阅读
- 家具|120平新中式二居室,简洁中又多了那么一丝丝的沉稳
- 背景墙|124平北欧三居室,以清新而富有生命力的色彩贯穿全屋
- 二居室|62平二居室大气美观,卫生间高级感十足
- 装修风格|115平现代风三居室,用木材和石材打造简约自然之所
- 三居室|127平美式风三居室,空间氛围十分具有生活化气息
- 伴侣|穷装250平 篇一:让传统窗帘秒变电动窗帘的米家窗帘伴侣好用吗?用了一个月的来说说
- 衣帽间|广州50岁阿姨,将140平家装得前卫时尚,色调浪漫复古,品味太好了
- 磁吸灯|平凡廉价普通的居家书房一角
- 户型|118平现代美式三居室,让人羡慕不已的华丽而又温馨空间
- 屏风|159平美式风四居室,沙发墙的居然是灰蓝色木质屏风
