今天分享的是一套建筑面积68平米的小户型单身公寓案例,房子本身的风格属于现代风,设计师在设计的时候,被客厅的这根大柱子给烦扰了不少的时间,加上隔断太拥挤,不加又太碍眼,最后围绕着柱子做了个360°的沙发,真的非常实用。整个房子是一个开放式的布局,走过玄关之后就是厨房、餐厅、客厅和书房
客厅在人们的日常生活中使用是最为频繁的,作为整间屋子的中心,客厅值得人们更多关注。装修的时候一定要把大部分的精力放在这个区域,打造一个精美的客厅。

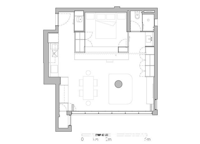
然后设计师选择了围绕着它来做上一张全包围的沙发,深蓝色的布艺沙发下方是定制的底座,这张大沙发坐下10来个人也不成问题。

整个房子是一个开放式的布局,走过玄关之后就是厨房、餐厅、客厅和书房,厨房的墙面铺贴了创意的瓷砖,搭配这种玫红色的柜门颜色,看起来非常独特。

电视背景墙选择了留白的设计,侧方留出了部分的空间做上白色的到顶储物柜,这也是家里的衣柜,放在这里就不用占用卧室内的空间了。
【 小户型|68平现代风小户型单身公寓,围绕主子做了个360 °的沙发真实用】卧室是除了客厅以外咱们在家中呆的时间最长的地方了,而且卧室又是一个休息并且相对来说比较私密的空间。所以装修的时候不用太繁琐,也无需太多的装饰。床可以选择宽大舒适的,门和吊顶可以选择质量好一点隔音效果强一点的。

当窗帘打开的时候,就可以看到这个简单的卧室空间,同样是以白色为主,加入了相同的木质造型和柜子,让卧室看起来简洁而又舒适。

用柜子来代替墙,对于小户型来说,是非常合适的设计,虽然少了一些隔音效果,但可以让家里多出更多的储物空间。
家里弄出一个书房,用来看书、工作都是不错的。想要使用得舒适方便,就要知道这个书房装修小技巧,做好书房装修需重视隔音问题,除了堵住墙面的缝隙外,更要加强墙体自身的隔音,让家人可以在不同的空间不会互相干扰。

书房是延伸卧室的床位来布置的一张长书桌,底部的储物柜和抽屉柜分别存放不同的东西,把窗帘拉起来就可以把卧室给隐藏起来了。

一套建筑面积68平米的小户型单身公寓案例,房子本身的风格属于现代风
推荐阅读
- 金科|碰到两梯四户的户型建议避开,窗户对着公共走廊,不封咋弄?
- 新房|一线城市节前房地产市场实探 上海升温北深广销售平淡
- 孝感|孝感新房01-26销售网签49套 均价5506.63元/平
- 乡愁|中式别墅的元年:它在拥挤的罗马小镇,孤独地守望着中国乡愁
- 会德丰|房价又有新情况,国内平均房价9749元,有业主要求退房、退款?
- 拖鞋|搬家,搬出不一样的精彩人生
- 蔡少芬|蔡少芬的家,只有90平!但没想到,他们家在香港已经算顶级豪宅
- 购房置业|二度上架!金牛岭地块终于卖出去了,楼面价1万/平
- 唐山|唐山小阳春凉了,唐山多个区域房价下跌
- |小城市业主的急切心理跟房价周期不匹配
