97平米的房子装修的特别好,很符合现在年轻人喜欢的现代风格,工作了一天回到家中,沉淀一下忙碌的心情。97平米一般都是三居室,年轻人有一大部分喜欢现代风格的装修案例,大家可以试着尝试一下。

大理石墙面天然的纹路形成古典的装饰。

宽敞的大空间形成舒适的整体格局,由于层高问题没有选择水晶灯,简洁的天花搭配射灯融入更多现代化气息。

【 三居室|97平现代风三居室,沉淀一下忙碌的心情】公共餐客区域保持开放一体的格局设计,不仅让家里看着更加宽敞,日常的移动路线也更加顺畅。

软包背景墙打造轻奢柔软的空间感,既保持了整体的舒适也营造了典雅的欧式空间氛围。

次卧采用了同样的收纳手法。

餐厅怎么装修好看又实用?如果你家餐厅的空间比较小导致电器无法安放,那么我们可以利用做几个电器柜,像是一些嵌入式的烤箱、微波炉或者常用的小电器都可以放在这里。既缓解收纳压力的同时餐厅离厨房比较近烹饪时拿取也比较方便。装这样装修餐厅就会好看又实用。

灰色石材吧台做简易隔断,同时兼并餐厅功能,极具休闲感。

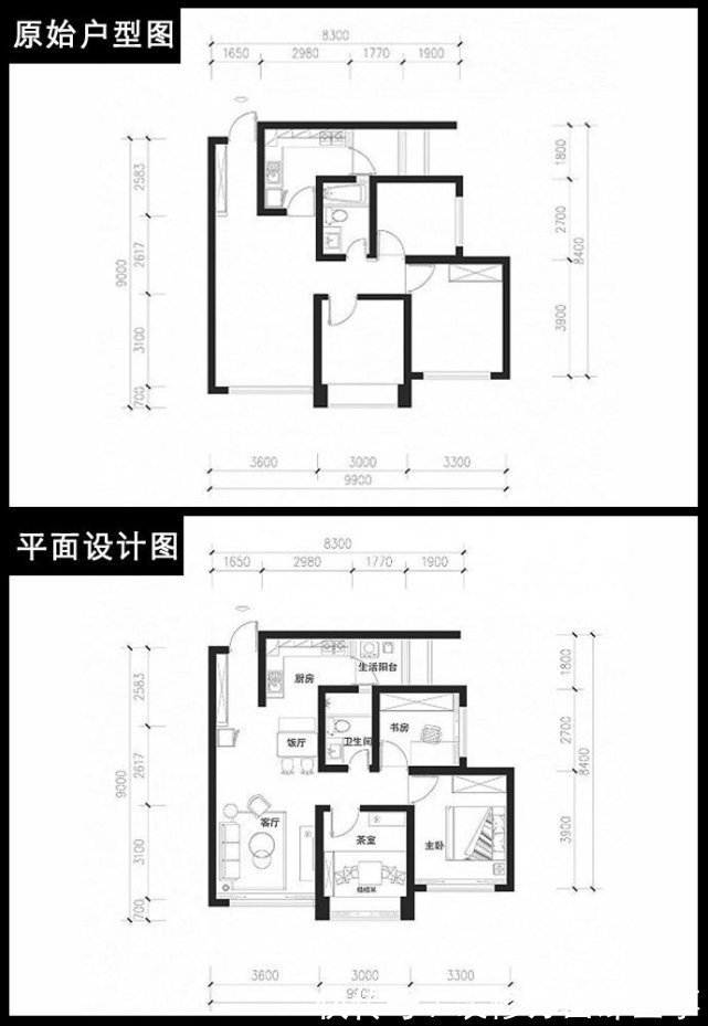
户型图
推荐阅读
- 背景墙|151平现代风四居室,诠释不一样的现代生活仪式感
- 卫生间|88平现代风三居室,白色加咖色的酒柜连着电视柜有质感
- 土地使用权|昌平又一大波腾退来了!三座公寓楼也被列入计划中
- 海马公园|110㎡现代简约完工实景,开放式的格局,这才是年轻人喜欢的风格
- 卧室|宅基地不大建四层也好看,这栋占地仅121平,不要错过
- 河南|76岁李保田定居山东养老!房价不到一万一平,儿子独住别墅太潇洒
- 身份证|占地160平的不规则户型,五卧两卫+挑空客厅
- 绘制|为什么设计师都在用气泡图推敲平面方案?
- 房贷|兰州:女子退租,房间里裤袜遍地胸罩乱挂,房东:平时打扮挺清爽
- 艺术设计|95平简约风艺术设计带入给空间的情感,才是动人、有温度的空间
