这是经过改版了很多次的呈现,男业主是完全按照女业主的意思来,挺羡慕他们的感情,男业主按照女业主的想法女业主照顾男业主的喜好俩人互相迁就,整个装修过程非常和谐女业主非常注重收纳,家里所有的空间都完全利用起来了男业主喜欢简单而又有质感的颜色所以柜体的颜色采用了深原木色系整体非常有质感

酒柜连着电视柜,柜子的颜色选的白色加咖色真的很有质感

客厅连着餐厅整面墙做满了柜子,既起到了装饰的作用收纳很足
卧室的整体设计是比较通透和明亮的,地板壁纸的装修和家具都不要那么地繁琐复杂,装饰品也要简单大气.主要以实用功能为主。

卧室的设计整体以灰色为主飘窗的设计休闲时间还能坐着看下风景

这个房间做了个小高窗,记得小的时候就梦想睡这种高床啦

【 卫生间|88平现代风三居室,白色加咖色的酒柜连着电视柜有质感】灰色的墙漆配上墙上的狗狗壁画以及床品的巧妙搭配,让空间效果更加丰富

卧室里的白色衣柜配上整体灰色的风格非常地好看衣柜的收纳空间非常地方便
卫生间装修虽不用像客厅那样的精致,但是为保证其使用的舒适性和安全性,我们在装修卫生间的时候还是有许多事情需要注意的, 卫生间墙面、地面和灯光的色彩搭配要合理,以同色系的色彩或者相类似的色彩搭配为宜,并且卫生间的色调以冷色调为主,也可以是暖色调。

卫生间与客厅保持同色系,空间虽小并不显拥挤
厨房的装修也是一样的,是要看你家的饮食习惯,是偏中式还是偏西式,这里的区分不是灯光而是油烟的问题,中式比较油腻一些,所以吸油烟要选择吸力大的,橱柜和橱柜的台面要选择容易打理的。水槽也要选择质量好一点的,这样使用的寿命就会长一些。

厨房在结构设计上摒弃了所有不必要的繁复枝节,尽可能地让空间化
肃穆的书房不一定非中式风格不可,但是强烈建议做好隔音,少了外界的干扰,不论是办公还是读书都能事半功倍,大幅度提高效率。

鞋柜连着酒柜,每个角落都利用起来了,木板和墙漆的配合非常地好看

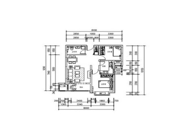
【户型图】整个装修过程非常和谐女业主非常注重收纳,家里所有的空间都完全利用起来了男业主喜欢简单而又有质感的颜色
推荐阅读
- 背景墙|151平现代风四居室,诠释不一样的现代生活仪式感
- 土地使用权|昌平又一大波腾退来了!三座公寓楼也被列入计划中
- 海马公园|110㎡现代简约完工实景,开放式的格局,这才是年轻人喜欢的风格
- 卧室|宅基地不大建四层也好看,这栋占地仅121平,不要错过
- 河南|76岁李保田定居山东养老!房价不到一万一平,儿子独住别墅太潇洒
- 身份证|占地160平的不规则户型,五卧两卫+挑空客厅
- 卫生间|不想安装循环泵,还想让家里的热水来得快怎么办!
- 绘制|为什么设计师都在用气泡图推敲平面方案?
- 房贷|兰州:女子退租,房间里裤袜遍地胸罩乱挂,房东:平时打扮挺清爽
- 卫生间|108㎡北欧三居,软装布艺中加入淡绿色变得清新活力起来了
