买了新房,是件振奋人心的事,终于在一个城市里有了一个立足之地了。一个95平米的房子该如何装修呢?
95平采用新中国风的装修风格,下面小编就给大家介绍一下这套新中国风风格的房子的装修案例,同时和大家分享一些装修注意事项和技巧,赶快来看看吧!
???

???
嵌入式的多功能实木电视柜,鎏金包边开放式的柜体,放置上古玩、字画、瓷器独属于中式家具的厚重雅致感尽显
??

??
客厅整体非常地硬朗典雅棱角分明的中式沙发搭配温润的木质纹路茶几,以及中式吊顶灯都在用横平竖直的中国传统思想构造一种舒适典雅的生活环境
???

???
方方正正的客厅空间三列式古典画置于厅之中轴线上将沙发和台灯桌完美分割营造出一种对称之美
卧室是人们居住的主要场所,宁静和安逸是多数卧室的主基调。基于卧室的特殊性,对它的装修也有一些特殊要求,卧室空间布置应尽量留白,即家具之间需要留出足够的空墙壁,避免出现空间拥挤的问题。
???

???
主卧电视柜旁放置了一个实木桌用于平时的办公、看书之用
??

??
卧室的设计特别的古典优雅新中式对称、留白、方圆三者的美学的特征也展现得淋漓尽致
浴室、厕所、洗脸间等各自独立的卫生间,称之为独立型。独立型的优点是各室可以同时使用,特别是在高峰期可以减少互相干扰,各室功能明确,使用起来方便、舒适。无论如何,我们都要把卫生间的防水做到最好!
??

??
卫生间整体给人感觉特别?的?爽朗整洁智能马桶、淋浴、洗漱区都很好地进行了归置和分区淋浴也做了干湿的分离
餐厅的装修设计在家庭中有着举足轻重的地位,虽然他不像客厅电视背景墙和沙发背景墙那样炫彩夺目,但是有一款个性又有创意的餐厅设计,还是会给你的家居生活带来不一样的体验。
??

??
餐厅一侧的墙体采用了嵌入式的开放柜设计既节省空间又极大地增加了空间的整体层次感
开放式厨房好不好?有些人厨房装修的时候想要开放式厨房,如果家中人口少、做饭频率低、烹饪方式清淡,可以选择开放式厨房,如果三餐都需要烹饪那建议大家一定要选择密封式厨房,只有这样才可以保持家中空气的清新,不会使家中油烟久久不能散去。
??

??
厨房整体做了原木一体式橱柜,大理石台面,米白色瓷砖,构建出一个干净、和谐的厨房空间
?
??

??
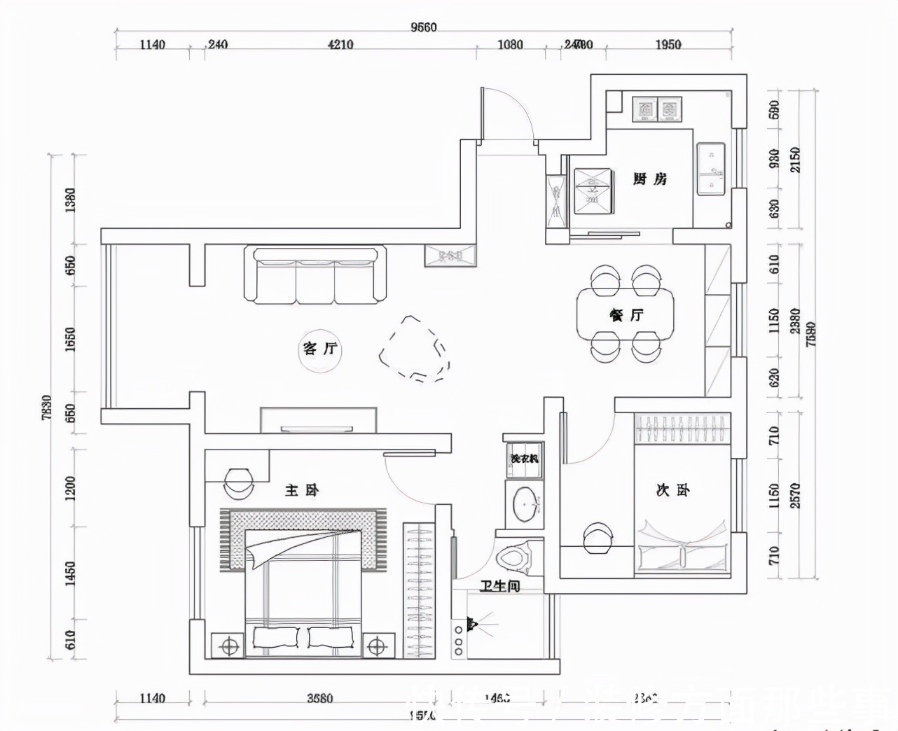
户型图
【 卫生间|95平新中式二居室,对称、留白、方圆的美展现得淋漓尽致】
推荐阅读
- 卫生间|卫生间泡沫如泉涌,女子淡定关门:怀疑自己梦游,走错房间了
- 宝贝|他花3年改造20平中式小院,大部分东西都靠“捡”,真是不可思议
- 别墅|一层带车库的新中式3层别墅,气质低调有内涵,回乡建房就选它
- 卫生间|阳春三月,天津买房的几条提醒,醒不醒在你
- 厨房|厨房卫生间装修,墙砖用全瓷还是半瓷?销售的话不能全信的
- 家具|雅致高逸,缅花无束腰马蹄镶云石茶几,中式客厅家具
- 卫生间|88平现代风三居室,白色加咖色的酒柜连着电视柜有质感
- 购房置业|江南大宅、人文雅居,静享中式徽派好生活
- 卫生间|不想安装循环泵,还想让家里的热水来得快怎么办!
- 卫生间|108㎡北欧三居,软装布艺中加入淡绿色变得清新活力起来了
