全屋|耗时403天,用万字分享下我如何从毛坯打造成复式再搞成全屋智能的经历( 三 )

——附加条件一定要写清楚自己沟通好的“福利”销售怎么忽悠都好,其实装修你能与装修最有机会谈判的时候就只有一个时候——那就是在你签合同之前!毕竟这个时候你是顾客,你说白了就是“上帝”,销售什么的都是忽悠你的!所以为了防止销售在签订合同前的事情没有兑现,在正式签署合同付款前,一定要把沟通好的“福利”以及各种赠送的东西等都以文字的形式白纸黑字的写在合同上,避免后面他们不认证!切记!!!!!!!

施工进场,开始装修之路唠叨了一大堆前面有的没的,感觉这里才是正文的开始,因为从这里才正式开启我“漫长”的装修之路。话不多少,先来一张图看看我客厅如何从毛坯到入住吧。

接着简单介绍下这毛坯套间的一些基本信息:-建筑面积:79
-楼高:最高处6.5m,最低处4.5m
-性质:住宅,民水民电

交房时,整个家里的情况,就是那种原装纯正未拆封的毛坯房,除了水泥墙,就是水泥地板,什么都没有,很朴素。
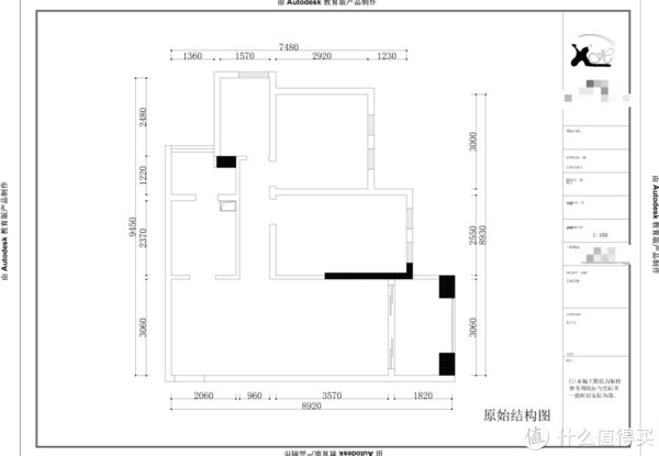
然后看看整体装修方案的平面设计图:


由于套间属于小区里面整栋楼的次顶楼,而且买的这个小区顶楼和次顶楼采用的是斜顶设计,所以即时是顶楼漏水问题也几乎不不会出现,毕竟斜顶相比于平顶的排水能力不是强那么的一点点。

而且这次家里人买的这个套间,最高处的层高达到了6.6m,最低处也有差不多4.5m,所以有这个层高,不做成中空+复式设计就真的有点过意不去了。
PS:当时签装修合同时候被坑了,按理应该要输出全屋,如果没有全屋也要输出个客厅和卧室的3D效果图的,我这里签合同的时候没有把这个要设计师算上去,后面要他们做,收了我600,而且质量超级差!真的不想吐槽了,太痛苦了而且个人觉得三四线小城市的装修,相比一二线真的差很远的说,无论是设计还是材料的选择上,稍微不逼死他们,就会有问题。
2020年10月13日,毛坯房正式动工,撒花!
正式开工我们也没有到现场,毕竟路途遥远什么的,只是选了个好日子,然后要装修公司做了一下简单的开工仪式,敲了快砖就代表开始施工了。整个施工从毛坯到基本完成会经历大概8个步骤,我下面都会针对我自己亲身的经历给你们做一下我个人对每一步骤的一些看法
施工第一步:盖楼板盖楼板可以说是我这次装修的重头戏,毕竟这个盖楼板说白了就是要在房里面盖多一层,从而拥有更多的使用空间。然而物管费只需要按照房产证上的面积来缴纳就好了,换言之就是我缴纳七十多平的物业费,却能拥有一百多平的使用面积,想想都美滋滋。

知识点:盖楼板的方式
目前主要盖楼板的方式主要就有浇筑和钢结构两种。大部分复式公寓什么的为了节约成本和时间都会选择钢结构的方式盖楼板,而我则选择了浇筑的方式,其实两者使用上个人觉得没有本质的区别,而且钢结构的施工时间也相对短一点,但考虑到这个房子是自住的,所以就想盖楼板还是要实实在在踏实一点好,所以就选择了浇筑。
推荐阅读
- 卧室|30岁一人独居73,全屋黑白灰装出高级感,两点一线的生活很充实
- 家居|走进一对夫妇60㎡极简主义的家,全屋白色原木搭配,简直太干净了
- 南京|南京一户人家:那叫一个治愈,83㎡,全屋不用乳胶漆,超有质感
- 搭配|90平简单装修 全屋米白色系的搭配清新自然
- 烂尾楼|英国女主安静的家,全屋精致温暖,如田园诗一般美好,治愈很多人
- 长春|在韩国自己买地皮盖别墅,138上下4层耗时6个月完工,理想的家
- 住房公积金|广州宝妈晒55㎡新家,全屋布置得井井有条,住五口人都不挤!
- 全屋|简装目前花5万,终于快结束了,找亲戚装的确实省钱,就是进度慢
- 定制|定制快讯|全屋定制品牌美佳家居签约陈数
- 阿姨|52岁阿姨的新居,全屋装修“一尘不染”的奢华,让人觉得很是羡慕
