小帐篷设计简约而不简单,为孩子打造一个游戏的小角落。
上下铺的小楼梯还设计了储物功能,节约空间,而且使用很方便。
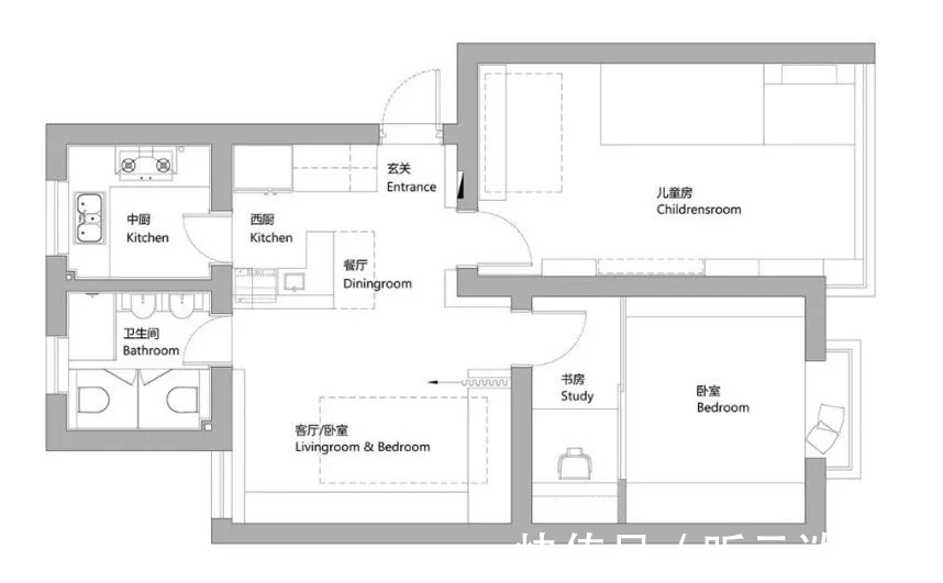
主卧采用榻榻米设计,整体上没有过多的装饰,而墙体也是采用隐藏式橱柜定制,大大增加了收纳空间。
床头的柜子留空设计,不仅能当床头柜使用,也让空间看起来更多层次感。卧室门后的纽扣衣挂,装饰空间的同时还能悬挂衣物。
飘窗与榻榻米相连,摆上手风琴式折叠茶几、坐垫打造成一个小休闲区,平时可以在这里休息喝茶,享受岁月静好。
主卧还隔出一个独立的书房,采用玻璃推拉门作为隔断,工作台同时还能当梳妆台使用,一举多得。
因为家里人口多,卫生间设计了双台盆,双马桶,同时拥有淋浴间,儿童浴缸及老人洗澡用的座位,最大限度地满足家庭成员的生活需求。
(本文由齐家安安整理编辑,图片来源于网络,如有侵权请告知我们删除!
推荐阅读
- 装修|88平北欧风二居室,装修完成太漂亮了
- |香港一家三口的30㎡蜗居:两室一厅虽狭窄逼仄,却一住就是7年
- 主卧室|独居女孩的精致生活,住176㎡平层,把日子过成众人羡慕的样子
- 书房|坚持原木风的夫妻,将家装修得一尘不染,一进门就是高级感
- |西安高新“耍猴盘”丹轩坊要开盘?经开绿城柳岸晓风能入手吗?
- |售价7万/㎡+,这个盘一线望江最具性价比?
- |300㎡墨西哥度假住宅:锯齿形退让,打造粗犷的可持续空间
- c简约风餐桌如何选? Tonin Casa这三款餐桌适合您!
- |绿城新兴玉园140平米现代简约-带你领略真正现代感
- 碧桂园|110㎡起,大校场润淮府马上加入战团
