今天给大家分享一套48平老破小学区房爆改三室装修案例,屋主买下这套房子理由很简单,学区房,至于房子本身啥毛病都有破旧、阴暗、狭小、漏水一个不漏,房子尽管面积很小,却拥有三间卧室,一米八大餐桌、阳光书房,这套房子用色也非常讲究,进门就眼前一亮,不仅美观,实用性也很高。小编看过之后,彻底改变对老破小学区房印象,小户型像她家装修,肯定错不了,我们一起看看吧。

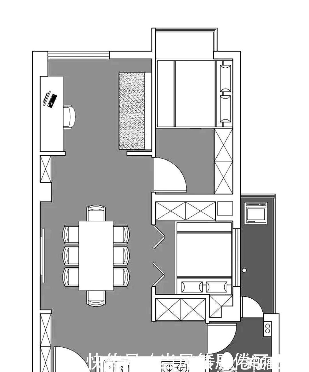
户型图
这是这套房子的平面设计图,屋主非常满意,进门开放式厨房彻底改变下厨等于“关小黑屋”局面,中间一米八长大餐桌,两间卧室和多功能空间,最常见是书房+客厅,家里来人,沙发变成床,隔断帘一拉就是一间卧室。

玄关
入户即是玄关,玄关是一个家的门面,尽管不大,但不可或缺,小户型收纳神器,一整排到顶的柜子,中间留空,安装开关,插座,放置一些包包、钥匙等小物件,不仅美观,收纳也很强,最多可以满足5口人收纳需求。厨房利用率最大化设计,嵌入式烤箱、蒸箱和冰箱,一应俱全,让女主人下厨变得轻松,整体性更强。

厨房
入户右边靠墙一整排橱柜,里边门通向卫生间,几何形图案的墙砖,让厨房看上去更加灵动明亮,老人房的百叶门可调节光线同时,扩大采光面积,让空间拥有更多的光照和空气流通。

餐厅
这个餐厅占地面积最大,最多可以满足6人吃饭需求,白色细腿餐桌摆放6把鲜艳餐椅,丰富的色彩,进一步提升美观度,让餐厅看上去精致又时尚。同时作为厨房的补充,成为女主人宽敞舒适的备餐区。

餐厅
白色的大理石餐桌上色彩和餐椅一样丰富多彩,精致的一字型吊灯,给餐厅增色不少。

卫生间
卫生间尽管面积不大,但设备却用最好的,智能马桶,高级的淋浴喷头、托盘和毛巾架,让家人们使用上更加舒适,几何图案墙砖,让空间显得不再单调。穿过卫生间是生活阳台,洗衣烘干一体机,搭配自动晾衣架,更加便利。

主卧
主卧定制的榻榻米床,上面可以掀起来,侧边是抽屉式,储物能力非常强大,贴墙也做了一整面大衣柜,到顶式设计,衣服再多也装得下,整体用灰色门板,视觉上统一,整体性强,飘窗摆放一盆绿植,给卧室增添不少生命气息。

主卧
主卧是靠着飘窗而放,没有放置床头,节省空间,无主灯设计,采用两盏小灯满足照明需要,色彩上用黄色点缀,和灰色形成视觉对立效果,弱化卧室空间狭小带来的压迫感,成为视觉焦点。
推荐阅读
- 装修费|刚交钥匙的125㎡精装房,效果非常满意,至少能省10万装修费
- 业主|120㎡原木自然风,经典美式贯穿其中,精致优雅大气
- 大理石|云南一大学老师晒出168㎡家,客厅照片圈粉无数,诗情画意太美了
- 地下车库|高层均价13957元/㎡!赏悦府取证(附一房一价)
- 卧室|不降低对生活质量的要求,哪怕是住在农村,也要整一栋漂亮的房子
- 简约|262㎡现代简约大平层,简洁纯粹的空间,生活从容自然
- 收纳|二胎家庭的幸福蜗居,86㎡挤出三室两厅,简洁温馨,满满家的气息
- 简装|96㎡新房保洁完,简装12万超实用,朋友都说没20万搞不定,晒晒!
- 电视背景墙|260㎡简欧大平层,装修效果比别墅还大气,每1㎡都散发着高级!
- 过道|看了她家,才知道什么是品味,全屋色调统一,满满的高级感
