作者:小李说装修漂亮的东西看久了不见得耐看,简练干净的空间反而与人的互动是最舒服的。现在市面上越来越流行以简约的主题为架构,在简约中体现出装修的精致,装修的品味,和装修的价值所在。本案介绍的是一套260平米的复式楼,上面所描述的正是业主喜欢的,也是本案设计的主题-现代简约风格。用简约的手法,用不复杂的工艺,精美的软装进行搭配,呈现出一股让人喜爱的装修风出来。

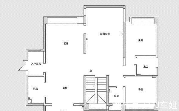
设计概括:装修风格:现代简约风格实际面积:260㎡空间格局:二层复式设计师:茱莉娅设计师项目位置:韶关市·左岸府小区装修造价:半包价格45.28W01户型图


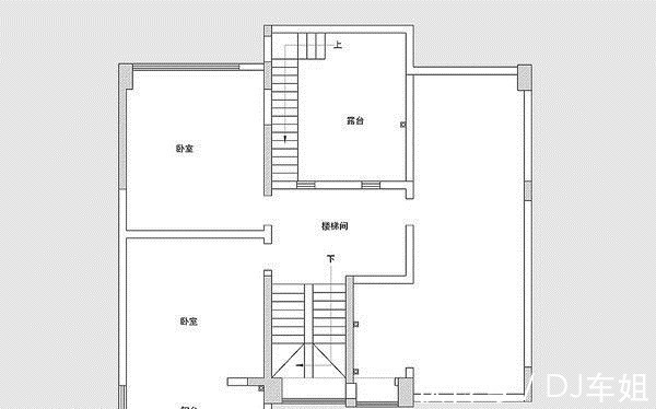
虽然只有两张图,但是这是一个三层的复式楼,因为从二楼上面还有一个露台,空间是错开的。这个户型在复式楼格局里面算很好的了,整体中规中矩,每个空间也较为方正。在大小面积分配上也比较均衡,没有有些空间分配面积多一些,有些空间面积分配小一些的情况,如果要说有,勉强也只能说厨房空间了,对比这么大面积的户型来说算小了一点。02平面图


房子面积大,又只有五口之家,所以整体格局规划得很舒服,每个空间都能满足大气、宽敞、舒适的要求。为了解决厨房小的问题,取消了餐厅旁边的阳台空间,把它改成了西厨,这样就增加了橱柜台面。一楼设计规划了三间卧室,有一间老人房,留有一间客房,另外就是茶室兼书房了;二楼保留三间卧室,一个主卧室和小孩房,还有一个多功能房间。03玄关



玄关只在左右两边各做了一组柜子,靠窗做矮柜,实墙就做得到顶柜子;打开房门引入眼帘的是前面“一片”开阔的空间,玄关是家里面连接室内外的空间,也是给客人的第一印象,它的装修好坏,也直接性或间接性的决定了整体装修风格的好坏。地面通铺的瓷砖,把玄关、客厅、餐厅和过道连成了一体,视觉效果更好了。04客厅



客厅空间并不大,受玄关和过道的影响,电视墙和沙发墙都显得不完整,所以也就凸显不出大气的感觉了。不过好在我们运用了比较简洁奢华的装饰“语言”,来尽量地保持这个复式楼客厅的效果,完整它敞亮和宽敞的舒适氛围。05餐厅

【 阿姨|52岁阿姨的新居,全屋装修“一尘不染”的奢华,让人觉得很是羡慕】

推荐阅读
- 操作台|新房装修注意事项:总结20条避坑经验,全是业主的辛酸史
- 过道|看了她家,才知道什么是品味,全屋色调统一,满满的高级感
- 吊顶|78平米小户型,面积不大,却很舒适温馨,满满的烟火气息
- 漯河|惊喜还是惊吓?伦敦市区以高价待售房屋的背后究竟隐藏了什么?
- 墙面|这是我见过最清爽的家,100㎡,自然宁静,让家回归本质!
- 98平|一个人的极简生活!98平的小房被她布置成精致小窝,引上千人围观
- 质感|这才是真正的极简风设计,打造大道归一的高级质感,美观且很耐看
- 公摊|为啥现在很多人不买带底商的房子?过来人告诉你,有5个弊端
- 杭州|说高新区是盐城楼市的洼地,没有人反对吧
- 卡架|看了太多的小户型,唯这套,简约温馨还书香四溢!
