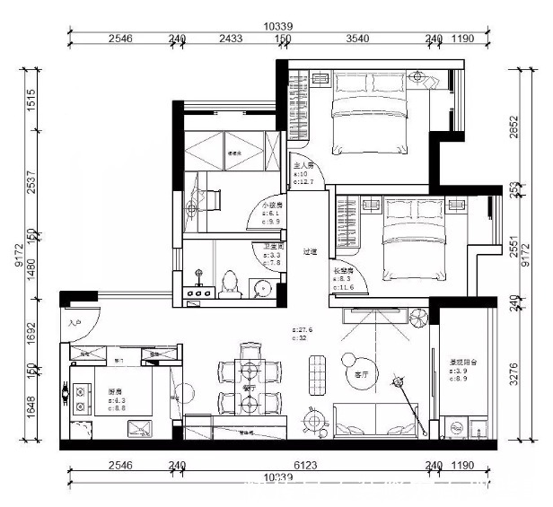
本案例是一套88平方米的三居室,原户型虽然方正,但是棘手的是没有玄关,狭小的过道也不方便储存鞋物;厨房是个暗房,居住体验很差;孩子尚小,廖太太渴望做饭的时候还能照看孩子,暗房没办法实现这个愿望。设计师在格局改造上巧设心机,把毛坯房变成集颜值与实用于一身的简约爱家。
客厅本身就是一个方便的地方,尤其是我们可以在这里,看电视,聊天,所以,方便,舒适,自然,可以说这个才是客厅最基本的要求。

面积不大的小家,处处暗藏储物空间,柜体整体配色是温润的木质纹理和饱满的纯白色,仿佛隐身于墙体,干净利落到极致。

整体装修,不追求华各式各样软装堆砌的华丽,也不追求彰显个性的风格化。廖先生和梁工都认为,设计应该处处充满本真、爱和阳光,承载着回忆也可期未来。
卧室装修技巧有哪些?卧室装修的时候,空间布置尽量留白,家具与家具之间要留有足够的空隙。顶到天花板的柜体,尽量不要放在显眼的位置,一开门就能看得到的柜体,高度不超过2m。

主卧浅灰色背景墙,营造出温馨静谧的空间氛围。
卫生间不同于其他生活场所,经常与水打交道,所以在装修前要设计好装修风格,可以根据个人喜好设计,当然东西的摆放一定要合理、方便,以免为日后洗漱带来不方便。

卫生间的黑白灰简约设计,小家装出高级感,干湿分离,储物空间设计一样不落。
【 幸福窝|88平拆墙连通空间完成通透明亮的家,颜值与实用并存的幸福窝】现代厨房布局的主要特征是按操作顺序设置设施,使操作者能按部就班地操作,从而减少往复交叉的重复做功。

整体视觉空间也得到了扩展,黑色的电器和玻璃隔断搭配起来相得益彰。

根据业主的需求,设计师展开了大胆的想法,通过拆墙联通空间,打造通透明亮的新家,完成颜值与实用并存的幸福窝。
推荐阅读
- 租赁|分享一款完美封神户型,好让大家知道低公摊是一件多么幸福的事情
- 幸福|还以为这些东西是“假精致”,用过后才发现太天真,生活幸福感倍增
- 装修|64㎡的小窝被他设计成128㎡的样子,全屋堪称教科书式装修,惊艳
- 租赁|50年前,梁思成就已预言,高层楼房会演变成“蜂窝楼”?
- 油烟机|刚装完新家就憾事连连!掏心窝总结:这15大败笔个个烧钱不实用
- 客餐厅|看了她的95㎡新房子,才懂什么叫神仙布局,打造幸福的五口之家
- 客厅|农村婆婆来给我们带孩子,看着我们租住房子,竟说我们住得窝囊?
- 幸福湾|白鹅潭失去的“二十年”,正在加速回归!
- 刀架|装修过3套房子,这次的厨房总算满意!入住半年,幸福感越来越强!
- 时尚|80㎡小窝两室,独居老人时尚宅
