孩子一到上学的年纪,父母都会考虑买套学区房,方便学习还能接受一流学校的教育,但好的学区房动辄大几十万,这让许多捉襟见肘的父母头疼不已。苏州的王先生为了拥有一套学区房,买了套70年代的40㎡老房,差点被老婆罚跪搓衣板,改造后,却成最美学区房,叫人羡慕不已。▼40平米的老宅,破旧阴森
【 老房|他买了栋40㎡的老房,被老婆罚跪搓衣板,改造后,却成最美学区房】
▼改造前的老宅,破旧不堪老宅的破旧程度,让人不能直视。进门就是一个厨房,3㎡的大小,到处都是阴森之感,用餐的话,只能摆一张桌子,特别不方便。

▼卧室的老旧程度,也是让人瘆得慌,墙上贴着以前的日历和挂画,面积小而狭长,宽度仅仅只有3米,摆上一张2米的床,就会让房间变得特别狭窄拥挤。

▼卫生间更是让人反胃,就和公共厕所一样脏乱,难怪王先生的老婆,差点让他罚跪搓衣板,这样的学区房,真的能住人吗?

▼这套房子虽然不大,但露台却有11㎡,这里搭建了一间房子,采光通风极差,简直就是一间阴森恐怖的“小黑屋”。

▼还有一个小小的后院,也是堆满了垃圾,让人怀疑这真的是人住的地方吗?环境太差了!这样脏、乱、差的老宅,要如何改造呢?

改造方案

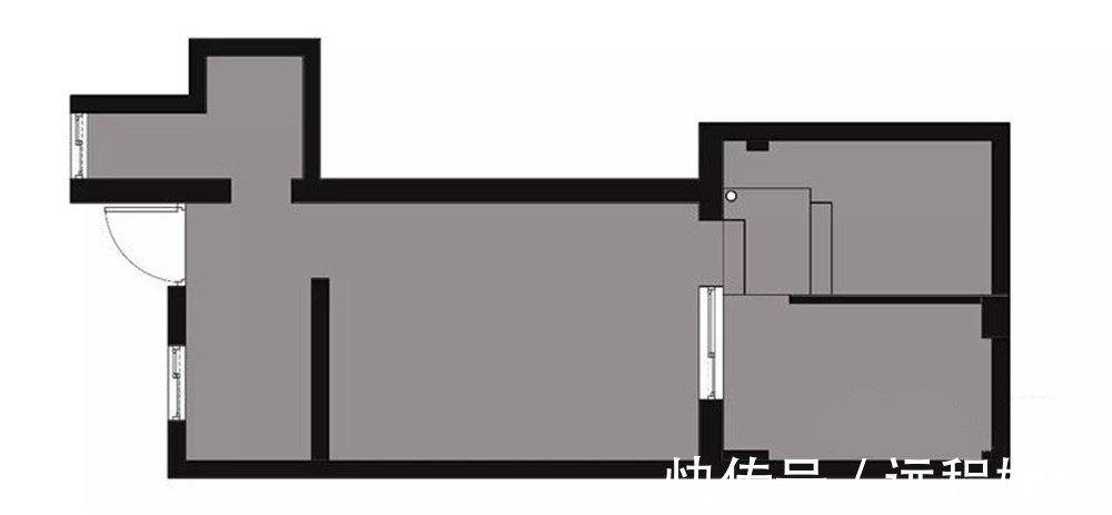
▼老宅原有的户型图这一整栋老宅,从布局上可以看出来是呈现“细长条”的格局,进门右边是厨房,左边卫生间,往里便是卧室,然后是露台和露台上搭建的小黑屋。

▼老宅改造后的户型图1、厨房与卧室之间的墙面直接拆掉了,这样就打通了玄关、衣帽间与书房、客卧之间的空间;2、玄关增设了洗手台设计,并且对原本脏乱的卫生间进行重新改造装修,使用了干湿分离式的设计;3、露台上新建的小黑屋直接拆掉,重新改造成玻璃房,并赋予了它餐厨功能;4、同时设计师还保留了一小块的户外空间,可以用作孩子平常晨读或是烧烤所用。改造后的老宅,脱胎换骨

▼入户玄关入户玄关中加入了洗手台设计,也做到了风水上的遮挡作用,进门后可以在这里换鞋、吸收,侧面加入了挡板设计,起到了遮掩作用,入户时不会一眼就望到屋里。

▼书房和衣帽间的融合设计原本脏乱的厨房空间,被改造成了衣帽间和书房,并且在置物隔板上加设了照明装置,让家里的孩子在这里学习,拥有极好的光线。同时这里还是一个衣帽间,方便日常衣物收纳。
推荐阅读
- 花园|为露台,他坚持买下别人不要的顶楼!花了6个月改造,原屋主后悔了
- 客厅|去小学同学家里做客,发现他家变化很大,尤其是那洋房真让人羡慕
- 离婚|他买下46㎡老房,老婆差点闹离婚,改造后,却成理想中的学区房
- 棚户区改造|棚改“停止”?住建部明确,今年起20年的老房子全部按新规处理
- 墙板|他家136平新房,家具优雅,客厅大方,背景墙富有品味!太迷人了
- 老房|退休夫妻花4年改造自家老房,建3000㎡大花园,住在人间仙境里
- 客厅|老公图便宜,买1楼的房子,亲戚说他脑子进水,装修完我不想收房
- 台州|我买了一套三楼带露台的房子,住进去后才知道理想和现实的差距
- 阁楼|老房改造-砸墙升级六类网线
- 耐用|中国古代普通百姓家都有窗户,糊窗户他们用的是什么纸张?
