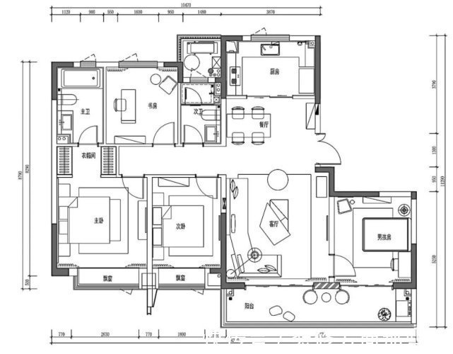
无比惬意的193平米的四居室,装修时选择了现代风格,让人每天下班只想早回家。那些让人着迷的设计相信会俘获很多人的心吧,这套装修案例应该就是理想之家了。
客厅是最主要的公共活动空间,不管是否做人工吊顶,都必须确保空间的高度性。另外,还要确保客厅从任何角度看都有美感。

客厅
卧室怎么装修?很多时候卧室不止是睡觉的地方,它还要同时承担工作、储物、吃吃喝喝等功能,想想你每天要在卧室里虚度大把时光,令人感觉舒服的卧室就尤为重要了。卧室装修一定要符合自己的生活方式,在设计方案时要提前考虑到位,避免后期出现装修遗憾。

卧室

客卧

次卧
书房一般空间较小,放置一张书桌后剩余面积很少,可以设计两个书架,最大的靠墙放地上,最小的挂在墙上。既装饰了书房又采用分散法最大限度地起到书架的收纳作用。

书房
【 角度看|193平现代风四居室,一眼看去这些设计让人着迷】玄关的采光宜明不宜暗,通常玄关没有窗户,因此极少会有自然采光,必须得通过安装灯具来进行照明,装修时必须要考虑电器插座的设置。玄关的灯具简单就好,彩灯会影响人的视线,美观但不实用,不推荐使用。

玄关

推荐阅读
- 盖板|外国人就是脑洞大开!好好的楼梯非要装个盖板,看完才知道多实用
- 卧室|樊纲:现在租房挺合算,年轻人刚工作别抱怨买不起房,你怎么看?
- 马桶|别让灯光毁掉你的家 快来看看设计师从不外传的灯光布局设计
- 客餐厅|有一说一,还是极简风最耐看!看她家客餐厅,真大气
- 暖气|如何正确安装使用暖气片?新手值得一看
- 简约|一个日本女孩在中国的家:简约不简单,这样的日式风看着顺眼!
- 打通|朋友家又火了,打通了阳台砌玻璃砖,实用2倍邻居都踏破门槛来看
- 豪宅|带你看看李嘉诚住的豪宅,房子四周都是山林,房子外墙坚固如城墙
- 伊姆斯|媳妇怀着二胎,他偷偷把家装好了,室内清新又不失文艺,太好看了
- 家居|8个“因为好看”入手的家居小用品,没成想,被实用性征服了
