每个人都希望拥有独处的空间,面积不需要很大,能满足日常生活即可,没有别人干扰,完全享受属于自己的生活。装修同样如此,不需要考虑其他,完全按照自己喜欢的样子去布置。一个人住,就应该怎么舒服怎么来。接下来分享一套43㎡小户型装修,麻雀虽小五脏俱全,既有生活又有娱乐。▼房屋基础信息项目面积:43㎡项目地址:北京市主创设计:黄英培

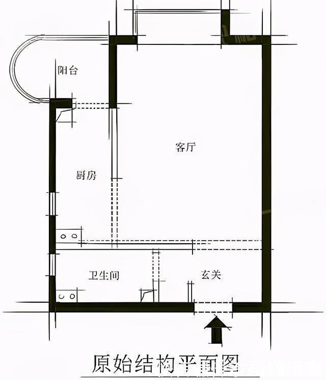
▼原始结构平面图43㎡的开间户型,进门一览无余,毫无私密性可言,同时整体空间利用率也不高。
【 客餐厅|一个人住,怎么舒服怎么来!43㎡,麻雀虽小五脏俱全】

▼墙体拆改平面图根据屋主需求,重新规划设计,新建墙体将空间分割,提高私密性也完善功能和收纳。

▼家具布置平面图

▼立体布置图

▼改造前图片改造前房屋图片,采光差空间利用率不高,整体缺乏收纳空间很乱,而且厨房过于局促,不利于日常操作。


▼客/餐厅空间空间有限,想同时拥有独立客厅和餐厅还是非常难的,装修采用中岛台设计,以发挥空间最大价值。岛台不仅满足了日常会客、用餐、办公,还可以是厨房操作台的延伸,日常生活还是非常不错的。

岛台一侧新建组合柜,集收纳、展示和电器柜一体,提高居家收纳,又保持空间整洁统一,对于小户型而言再合适不过了。到顶设计不浪费空间,又避免了打扫的不便。

客餐厨一体,空间重叠利用,让原本紧凑闭塞的空间,变得宽松明亮。

▼厨房空间厨房告别了原有局促的格局,整体变得宽松舒适。水槽和灶台一侧,另一侧简单设计矮柜,上方平台刚好用于摆放水壶等家用电器。厨房与阳台利用米色风琴折叠门隔断,灵活性高而且占用空间小,非常的不错。

▼阳台空间弧形的阳台空间,打造成休闲区和瑜伽房,灵活可变的设计,让空间更具弹性。值得推荐的是弧形长凳,可折叠设计,需要的时候展开,不需要的时候收起来摆放在角落,让空间更宽松。

▼卧室空间卧室采用对开门设计,局部嵌入磨砂玻璃,以维持空间采光效果,让客餐厅不那么昏暗。卧室简洁设计,没有太多的装饰。简单的书桌柜设计,一物两用,日常办公、梳妆都可以实现。
推荐阅读
- 一件小事|工人装飘窗时多留一个小孔,业主问完原因,二话不说多给他100块
- 沙发|建议每家每户:现在客厅沙发这样摆放,面积直接大了一倍
- 客餐厅|如果有一天我退休了,希望能回农村养老,这个想法一直不会改变
- 家居|客厅不要茶几和电视,77㎡越住越大,室内干净清爽,把人深深迷住
- 客厅|客厅养树提升档次,首选这4样,吉祥又漂亮,关键是好打理
- 客厅|若在买房,客厅要做到“5不装”,不是唬人,而是过来人的经验!
- 齐家云云|客厅隔断只能砌墙?教你把洗漱台延长,既能当隔断还能干湿分离
- 墙壁|以后买房了,就照这样装,客餐厅太上档次,全屋简洁有气质
- 安居客|为什么不建议买二手房?过来人表示:住过才明白,容易有3大弊端
- 家具|装过两套房,才敢劝你别往客厅添这五件鸡肋家具,附上替换方案
