本次委托设计的是一套老房改造项目。屋主是对生活有精致追求的80后夫妇,男主人曾经留学意大利,多年的海外生活经历使其深受西方文化影响,注重生活细节和设计美学。夫妻俩希望拥有一种自然简约的居室空间,打造“简约而不简单”的内在高级感。经过多次的深入探讨,我们打破规则,探索极简静美,去掉琐碎,回归最纯粹的简单,不动声色的流露出骨子里的优雅,正如夫妇俩不喜张扬的性格。本案以大面积的「白」打造极简的底色,搭配时尚低调有质感的家居配饰,让整体空间更加生动活泼,高级雅致。
HOME PLAN
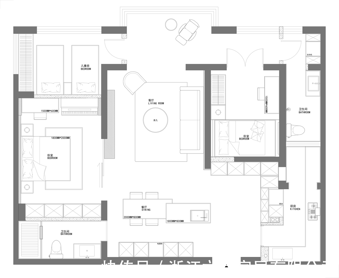
户型图大改造,增加空间收纳
户型图

▲原始结构图本案原户型结构为两室两厅一厨两卫,随着两个女儿的相继出生,原始户型已无法满足业主五口之家(两女儿,一老人,两夫妻)的居住常态。小区楼间距较小,本案在二层,自然采光条件非常差。玄关处有客卫的阻挡,完全没有自然采光,玄关鞋柜收纳空间不足,杂物较多,使得空间显得晦暗又局促。夫妻与两个女儿一起居住在东侧较大的卧室,缺少各自独立的空间,随着二女儿的出生,收纳空间也明显不足。■业主要求:? 重新进行空间布局,孩子们有独立的空间? 保留两个卫生间? 解决采光的问题,使空间显得宽敞明亮? 可以接受开放式餐厅厨房? 要有足够的收纳空间
【 旷而不乏,无极之境为至美!|124平现代简约三室老房改造| 门厅】

▲平面布局图? 门厅:为了改善门厅采光差的痛点,我们将原客卫拆除,扩大入户门厅空间,也增加了门厅与餐客厅互动性。用满墙通顶柜代替隔墙,重新分割厨房与老人房空间,增加大量储物空间的同时,鞋柜和衣帽柜也隐藏其中。? 餐厅:改造后的门厅与餐厅融为一体,面积规整且方正,设计师在此空间做餐岛一体的设计,靠墙做整墙餐边柜,内嵌冰箱、烤箱,与中厨形成关联,增加使用流畅性。? 主卧:主卧面积较大且狭长,为了实现屋主的儿童房愿望,我们用半墙+玻璃窗作分割,在保证主卧采光的同时,分割出一间独立儿童房。? 主卫:缩小主卧卫生间面积,并将开门位置移到餐厅一侧,满足日常如厕、洗澡及洗漱功能,也为主卧争取出三组对开门柜子的空间。? 老人房:原客卫被拆除后,老人房的空间得以释放,榻榻米,书桌,三开门衣柜规划其中,满足老人居住的基本需求。? 次卫:老人房右侧的天井位置,打造成洗衣区+次卫,方便老人起夜,且整屋空间功能区得以完善。
ENTRYWAY
进门入户就是玄关,高级感满满,进去就是客厅
玄关

? 玄关串联起餐厅和客厅,增加了空间的尺度感? 四组通顶衣柜,储物空间堪比小型衣帽间
DINNER ROOM
通透明亮的设计理念
餐厅

?目之所及,通透明亮,200㎡大平层的既视感

?餐客厅主色用了大量的白,全屋无主灯设计,干净利落,宽敞明亮
?开放式厨房,餐桌嵌入岛台,错落有致,岛台极尽收纳之能事,动线流畅,视觉上通透大气

推荐阅读
- 墙面|别信装修上的“鬼话”了,这几处没必要花大价钱,穷装反而更实用
- 建房|2套高品质生活农村小别墅,造价不贵而且耐看,2020年农村建房首选
- 客厅|若在买房,客厅要做到“5不装”,不是唬人,而是过来人的经验!
- 耐看|“穷装”反而更干净舒适,103㎡色调高度统一,耐看极了
- 装修|第二次装修,建议做好这7个装修决定,不是矫情,而是真的实用
- 别墅|精致的两层别墅,不仅满足审美标准,而且实用度也没得说
- 屋主|全屋刷大白,顶部走石膏线,越省钱式的装修,效果反而越好
- 房子|装修房子,坚持5处穷装,不仅很实用而且住起来会越来越舒服
- 葫芦娃|神回复:为什么售楼处卖房的大多是女性?而房产中介大多是男性?
- 鲁班|精装房只能千篇一律?个性化精装交付让你的家脱颖而出!
