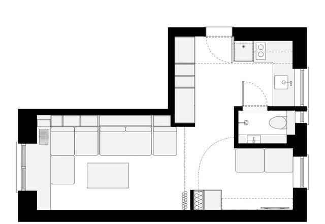
作为半个家居博主,最爱看的案例就是小户型,空间小要五脏俱全,又让业主住的舒服,有足够的收纳空间,这很考验一个设计师的功力。而在今天,我又给大家挖掘到了一个非常有趣的家,千万不要小瞧这个33平,客厅既是餐厅,邀请10人共进晚餐都不显挤之外,往下掰一掰柜门又能腾空多出间客卧。

Yes,就是这么的令人出乎意料!在这套房子当中,你眼前所及的家具可都不简单,比如客厅这茶几,它\\\"肚量\\\"里隐藏了好多小机关,可使其扩展、延长变成一张能容纳10个人的大餐桌。

沙发也是,由白色的模块积木组成,可以四处移动,自由拼接,既能拼成L型面对电视放置,也可围着茶几呈U型做长凳使用,非常的灵活百变。

接下来就是整个家最精彩的部分,之前听很多人说,小户型房间少,亲朋好友留宿是问题,其实,你可以这样装修的,柜子里面不储物藏张床,使用的时候再往下一拉,平时不用时不多占1㎡。

主卧就位于旁边,也包含类似的灵活功能。一张长桌子从墙上折叠下来,平时可以作为办公区,休闲吧台喝喝茶发发呆偷得浮生半日闲。


与客厅之间,用pvc折叠门为隔断,在需要时为主卧提供私密性。



留给厨房的空间不是很大,6平米不到,可该有的设置一个都不少,可以满足屋主一个人日常生活所需。为了保证整个空间的色彩统一,整洁,嵌入柜子中的冰箱,是屋主特定找厂家定制的。



【 小户型|33㎡房子也能样样俱全,茶几内藏机关,拿来当餐桌坐10个人都不怕】
推荐阅读
- 沈阳|“红极一时”的百平三室户型,是鸡肋还是真香?
- 何雨晴|佩服!她把仅55㎡的家重新改造,有“4室”两卫,老破小逆袭成功
- 开放格|76㎡轻奢欧式风,复古又优雅,小户型也能这么上档次!
- 收纳|越简单越精致日式温馨小家,全屋干净到令人心动,美得恰到好处
- 实用|10套柴火灶户型推荐,实用性不输城里小区房,尤其是第6套太美了
- 法兰圈|为什么马桶用时间久了,吸力会越来越小?这4个地方罪魁祸首!
- 日式庭院|18个新“日式庭院”设计,建个日式小院,让人舒适到挪不开脚步
- 装修|一位小姐姐低价买下旧房,为省钱自己动手装修,网友:太能干了
- 色调|160平大户型美式风装修,衣帽间在客厅中!这种设计巧妙不?
- 采光|住范儿真实案例 篇四十:113㎡有娃之家空无一物,超大落地窗让“采光自由”,绝了!
