
要说温馨,两口子下足了功夫,在高低床里装上暖暖的灯光,每一个功能又是相对独立着。

就连侧面也不放过,定制出一块黑板墙,用来绘画与涂鸦,这里俨然成为儿童乐园,满足儿童的各种需求。主卧室


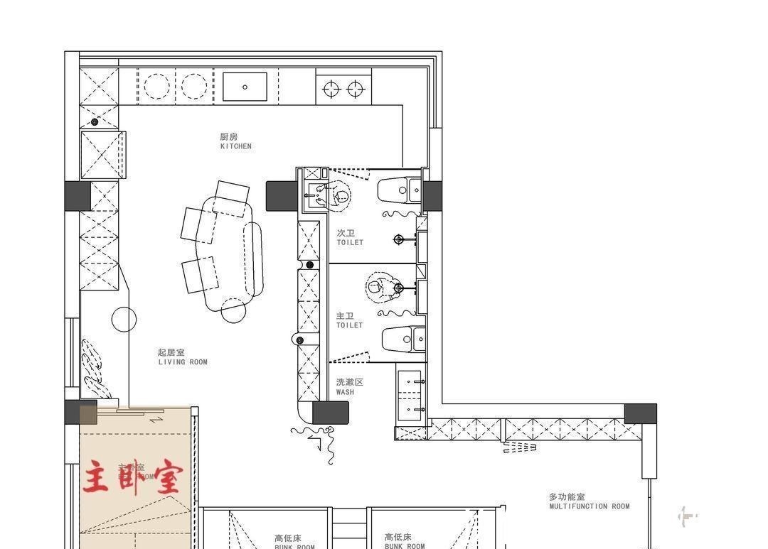
“主卧室”连着高低床,形成休息区在一排的设计,里面仅仅就是一张床的摆放,虽然看起来十分有限,但我强烈感觉到幸福的家庭生活。

两个主人在里面放上舒适的床品,甚至在床头还有个小衣柜,用来收纳贴身衣物,可以说把实用性做到了极致。


尽管卧室之间离得很近,私密性不怎么好,但对他们而言,这是最优的解决方案,如今的卧室规划可以容纳7到8人休息,而且并不觉得很挤,甚至全利用PVC折叠门隔开,墙上挖洞造窗,让光线自由引入。完美的起居室


这里是一家人最大的活动区,把原来的阳台和厨房全打开,形成开放式设计,整个空间豁然开朗,在中间位置摆放大长桌,以它为“C”位,四周形成无障碍的洄游动线,让居家生活更加便利。

比起传统客厅的布置,长桌替代沙发和电视更加实用,它既是一家人的用餐区,还是阅读的书房,甚至还是亲子互动与辅导作业的地方,他们更愿望称之为这是起居室,比起客厅一板一眼,起居室更加温馨,更有人性味。就像他们说的,没有必要把家里的功能固定化,只要合理实用,贴合自己的生活习惯,舒适度并不亚于大豪宅。

但他们还是靠窗定制了小卡座式沙发,人多的时候还是很方便的,虽然没有电视功能,但坐在这里玩手机也很惬意。

卡座沙发边上就是大高柜,家里的收纳集中统一,把一些零散的生活物品存在里面,干净整洁。


灰色大高柜对着的就是多彩的书架,两个小孩小学期间,有大量的书,而这里就是最会好的收纳空间,加上玄关处的多功能房,家里的收纳十分充足。无敌采光的厨房

打通后的厨房,台面有6米,在这里洗菜做饭,还能看见外面美丽的风景,因为没有了阳台,他们把洗烘机都嵌入进橱柜里,功能很丰富。再加上选择的集成灶,就算是小空间的开放式设计,油烟也不会到处乱飘。竟然还有两个卫生间
推荐阅读
- 柜子|日本收纳达人的家,物品摆放井井有条,吸引众多人前来学习,佩服
- 整洁|夫妻的90㎡小三居,每平米都用到极致,衣帽间家庭影院全有,佩服
- 收纳|佩服!她把仅55㎡的家重新改造,有“4室”两卫,老破小逆袭成功
- 购房置业|这也太秀了吧!她把农村老房子改成“豪宅”度假屋,真想搬进去!
- 二手房|以前农村盖房,为什么不留后墙窗户?听完才知真正原因,佩服!
- 房价|故事2014年她把唯一房子卖掉,无处可去,2017年她白捡一套新房
- 历史建筑|这位日本太太,边带娃边收拾家务,每天都过得像年末大扫除,佩服
- step|没钱铺地板,她把木头锯成一段段铺地上,完工后邻居忍不住称赞
- 新房|晒晒小姨住了8年的房子,每次去都和新房一样干净,真让人佩服!
- 沐宸|她把家布置得像个“寺庙”,室内静谧安宁很舒适,让生活回归简单
