小户型loft本身的动静分离结构,深受年轻人的喜爱。空间的多样化带来更多可能以及功能的延伸。

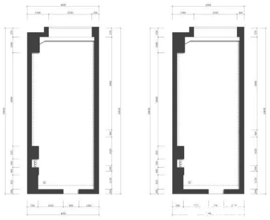
▲原始图纸,上下两层,共80平的面积;开放格局,可以根据自己入住功能随意规划;空间不大,一般适合小两口过渡或者单身入住

▲设计布局,一楼休闲会客,二楼卧室休息区,完美的动静分离是小户型LOFT的最大亮点。

▲进门单独门厅,直对收纳鞋柜满足入户的第一收纳;一楼卫生间不需要设计淋浴,所以进门左手很小的地方即可满足功能;进入客厅过道区域,换鞋凳布局,可以满足进门的随时就坐换鞋以及放置物品

▲入门右手布局了换鞋凳,墙面一半仿皮质的瓷砖,一半全身镜,满足了随时整理仪容的功能,同时还有放大空间的功效

▲进入一楼客厅全景,常见的黑白灰现代搭配,整体明亮干净

▲门厅进来开放厨房满足基本的操作,同时与西厨柜一体定制,满足冰箱电器的镶嵌处理;小的岛台可以提供就餐和办公两种功能,更时尚高级

▲西橱柜与岛台完美分割空间功能区,沙发黑色的背景搭配灰色现代沙发,满足会客休闲功能

▲楼梯下方布局白色的电视柜,不需要电视,采用大幅挂画以及落地灯搭配,更有品味和高级感

▲窗户下方地台设计,既可以休闲,又能与楼梯一体设计,同时楼梯钢化玻璃踏步和扶手,极富高级感,视觉上更加通透明亮

▲黑白灰的沙发区经典设计,完美体现了年轻人的审美喜好

▲楼上空间层高相对较低,采用无主灯极简布局,背景半截墙皮质的护墙板设计,大气简约

▲卧室的另一边,一半L型衣帽间定制,玻璃柜门设计,满足收纳的同时让视觉明亮高级;衣帽间对面卫生间设计,布局淋浴浴缸满足生活的舒适

【 loft|80㎡小户型LOFT,年轻人的最爱】▲楼上卫生间延续黑白现代风格,一边定制浴柜,另一边安排淋浴以及浴缸的单独区域
推荐阅读
- 绿植|60后退休夫妻的:336㎡水泥别墅,全屋“赤贫风”,这叫有钱又闲
- 齐家|还在抱怨你家小户型餐厅不够坐?好多人都装餐厅卡座了,美观实用
- 智能|小白智能灯光攻略(一)
- 豪华洋房|30㎡复式小三层,5个大人住一起,尴尬难受,爆改后变身豪华洋房
- 8年赚了30万,回乡下盖了个小别墅,装好后朋友却说很土气
- 攻略|装修小白如何装修房子,认真总结了一篇详细攻略,直接拿去参考吧
- 有情调|小户型适合做个小吧台,有情调又好看,太喜欢了
- 女婿|18㎡“棺材房”挤下2对夫妻,丈母女婿睡上下铺,一翻身床嘎吱响
- 阳台|北京38岁小姐姐的独居生活,34小屋,床直接设计在阳台了
- 家庭影院|打拼6年终于买了55平小户型,卫生间浴缸淋浴房全有,给大伙晒晒
