娱乐室|安徽二层中式合院,15.6m×25.7m
K8
别|墅|设|计

Make your villa dream come true
安徽二层中式合院建筑尺寸:15.6m×25.7m
占地面积:274㎡
建筑面积:451㎡
结构形式:砖混结构
2层 / 6室 2厅 5卫 2厨 1堂屋 2储藏 2衣帽 1茶厅 1书房 1书房/娱乐室 1茶区 1阳台 1露台平面图
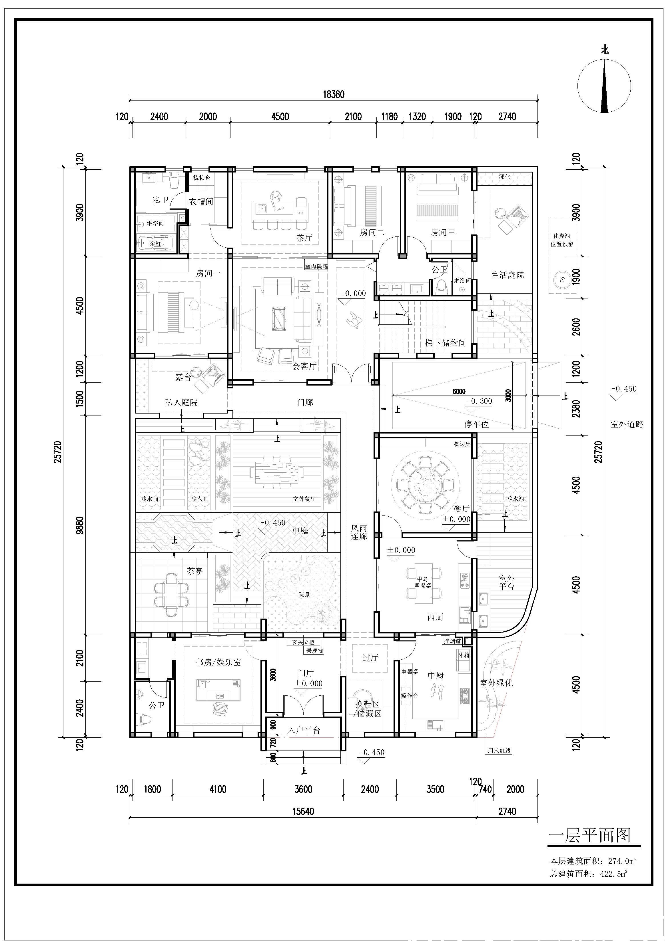
一层主要功能为接待休闲娱乐,南侧门厅进来左边为一个带私卫的娱乐室,右边为门厅和换鞋区。挨着过厅的是半开放式厨房,开放式西厨和一个八人餐厅。通过风雨连廊来到中间庭院,庭院布置了水景,茶台,可以在此饮茶休息。厢房和正房间做了一个车位,正房共布置了一个客厅一个茶厅,一间大套房两间客房,一个公卫,设计师还充分利用了东侧的空地,在此打造了一个生活庭院。

一层平面图
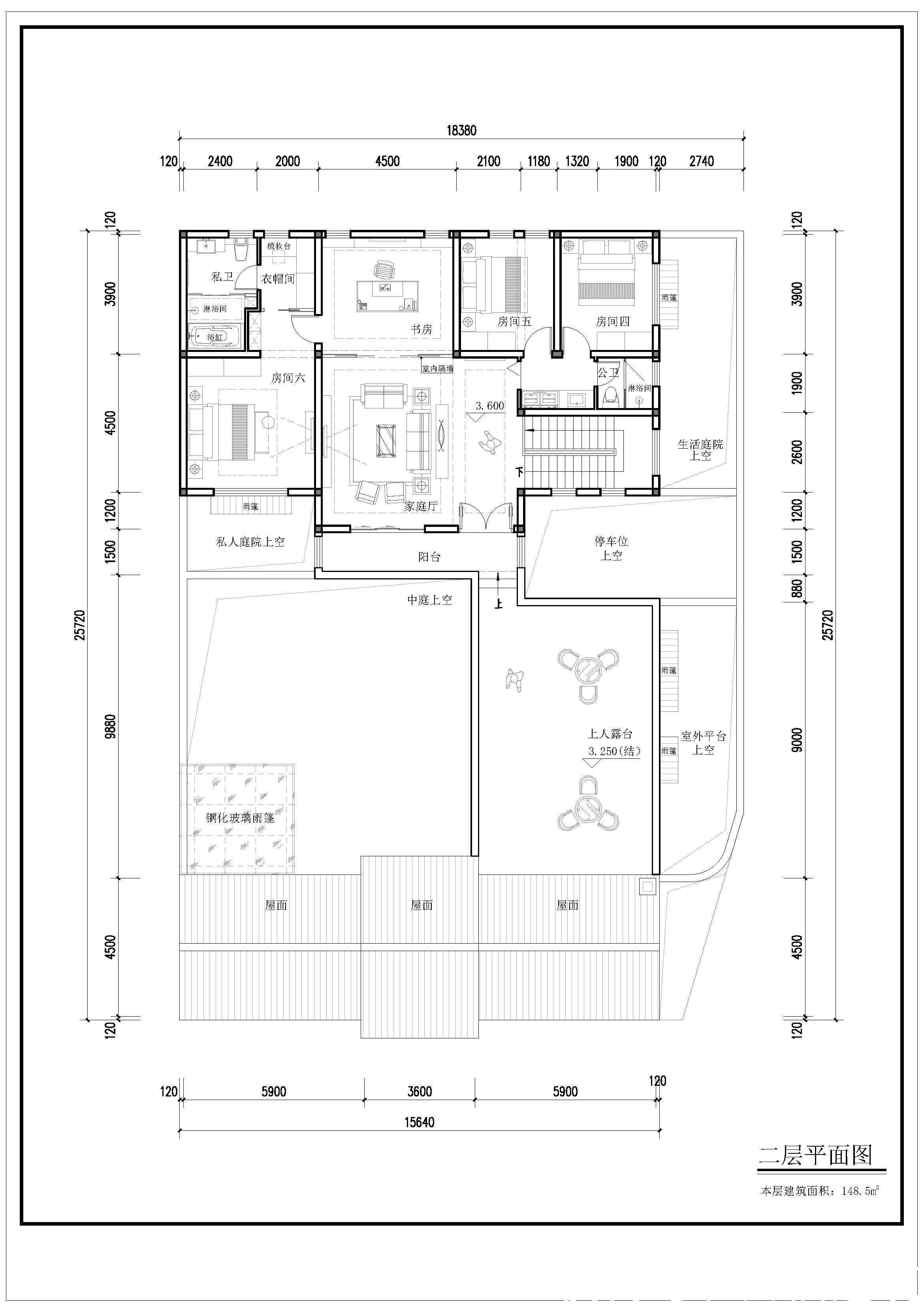
二层布置和一层对应,一间大套房两间客房,一个客厅一个书房,一个公卫。通过南侧阳台可以来到厢房屋顶露台。

二层平面图
效果图

西南侧效果图
本项目风格为新中式风格,外墙为白色真石漆,屋顶为中式小青瓦,门窗为仿古中式门窗,整个院子简洁大方,建筑和景观完美搭配,既时尚又不失中式韵味。

总平图

南侧效果图

东南侧效果图

东侧效果图

【 娱乐室|安徽二层中式合院,15.6m×25.7m】东北侧效果图

庭院效果图

庭院效果图

庭院效果图

庭院效果图

东北侧效果图
推荐阅读
- 别墅|有阁楼带庭院,14×15米南北通透二层别墅,新房这样建真的很好看
- 住建部|安徽二层中式合院,15.6m×25.7m
- 别墅|乡住免费图纸土建造价参考85万,面宽21.5m×进深13m 二层现代别墅
- 小知识|15×12米二层小别墅,造型美观布局实用,自家盖房选这套准没错
- 小楼|和父母同住房子该怎么建?这款二层小楼开启两代人共同居住新模式
- 真石漆|花最少的钱,建最经济实用的房,这3栋二层别墅一定不能错过!
- 楼市|安徽徽缘杨海波:预计2022年合肥楼市保持平稳
- 不动产登记|重磅!包河区位居2021年度安徽省建筑业10强区榜首
- 别墅|农村自建二层别墅,面宽13米有6室1厅,好看又实用,盖房就盖这样的
- 安徽|安徽16市房价:合肥22869元/㎡、池州第五、10城上涨
