对于小户型来说,由于空间面积受限,更是会弱化家里的硬装处理。比如下面这位屋主在装修时,就考虑到家里面积比较小,放弃了吊顶和造型设计,虽说硬装这块简化了,但在软装搭配上却圈粉无数,以至于很多朋友都来取经。当然,从最后的效果来看,整个空间氛围也确实很温馨,很值得我们来借鉴。
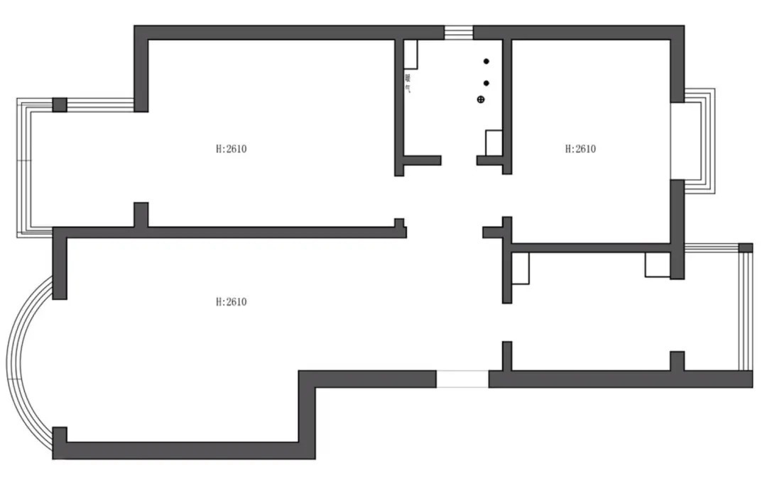
平面结构图

本案坐标北京,建面72㎡,两室一厅的格局,屋主是一对小两口,还养了几只猫。原户型很工整,问题也比较明显,比如入户门对着卫生间门,卫生间面积过于紧凑。而屋主对新家的需求则比较简单,就是希望在有限的空间中,能将面积全部利用起来,并营造出温馨、治愈的空间气息。
平面方案图

从改造好的方案来看,全屋改动并不大,仅对卫生间做了针对性的调整。比如整体向主卧扩大,让内部实现了独立的淋浴间功能,并解决了洗衣机的空间需求。同时,由于主卧缩小了,卫生间门洞也自然做了偏移处理,从而避开了与入户门相对。具体通过下面的实景,再来慢慢分析。
玄关

温柔的奶咖色,大量的原木元素运用,一进门就为空间奠定了温暖的基调。虽说入户并没有一个完整的玄关区,但通过合理的布局,也自然延伸出了一块落尘区。
比如入户门右边设计挂衣杆及全身镜,就解决了挂衣挂包,以及整理仪容的需求。再比如将鞋柜设计在厨房旁边,既为入户留下了宽敞的动线区,也解决了日常的鞋子收纳需求。

很多人都说在空间面积小的情况下,地面不适合做拼花处理,以避免空间显得太过复杂。可事实上,这并不是绝对的。像屋主家就给地板做了“人”字形拼花,这样一来,不仅提高了空间的律动性,还让视觉有了更多的延伸性。
餐厅

客餐厅为一体化结构,在空间面积比较小的情况下,选择一张细脚型的餐桌,并贴着电视墙摆放,可以说是最节省空间的做法了。

挂衣杆旁边一组成品的餐边柜配置,在解决日常收纳的同时,也兼具了不错的装饰效果,从而为空间增色不少。
客厅
来到客厅,虽说在硬装上放弃了吊顶及造型,但当空间以奶咖色为主基调后,却从骨子里透着一抹温馨的气息。同时,低饱和度色彩的软装选择,也让空间在奶咖色与原木色之间有了一个微妙的平衡,并强化了空间层次。

沙发墙不做过多的处理,仅通过几幅复古的装饰画,就巧妙弱化了留白,并与整体做到了融合。而一组活动式的边几配置,也让空间做到了灵活、自由。

沙发侧面增加猫爬架,不仅起到了点缀空间的作用,也让猫猫有了一个自由活动的小天地。
推荐阅读
- 家居|看了他家100㎡的房子,才知道什么是岁月静好,家居氛围太棒了!
- 汶河街道|扬州市区挂牌4幅地块 最高起始楼面价约5983元/㎡
- 四居室|147㎡的原木风四居室,客餐厅一体好通透!
- 多功能房|她家220㎡,面积大还好看,室内高级灰有质感,简约设计干净大气
- 玻璃|男子晒出独居空间,复古风格,每1㎡都精致又舒适,一人住就是爽
- 柜子|128㎡四居新房花26万,全屋定制超实用,亲戚们参观赞不绝口!
- 木地板|不吊顶不跟风,95后小两口9万元装65㎡两居室,网友:好精致
- 柜子|150㎡经典二胎家庭早该火了,2娃1屋上下铺,又敞亮又省间房
- 衣柜|他们家81㎡,用原木+现代简约,打造成日式混搭风,平淡又温馨
- 奢华感|表姑家300㎡大平层,历时2年终于完工,尽心尽力,幸福感满满
