人造景观|云合设计——震惊!这房子真的只有不到100㎡?设计师也忒牛了!

这个案例是北投的一个房子,大家可以猜猜这是多少平?绝对刷新你的三观!
本案业主希望可以给孩子一个快乐成长的环境,所以要求儿童房要有游戏空间。
下面的是原始户型图:
不足之处格局有点狭长,不是很合理

于是我们拆除了部分的室内隔间墙,将空间重新梳理布局。
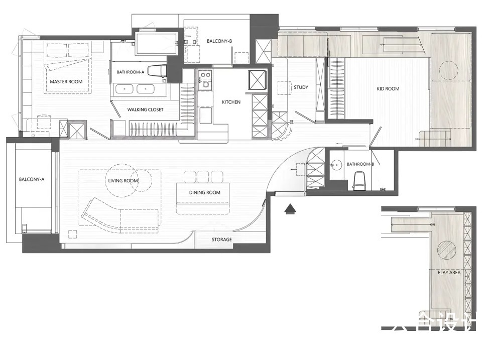
下面是改造后的平面图:

儿童房的设计,我们是做了上下盒子的错层设计,做了不同大小的圆洞,增加空间与人的互动性,下方是放置了两个双人床,一家四口都可以休息,也可以与孩子互动,盒子还做了滑梯,释放孩子天性,上方就是露台,提供娱乐。

滑梯下来的地方做了球池,作为缓冲区,保证孩子安全性,同时也可以感受滑下来那种喜悦感,楼梯台阶做的是隐藏式收纳柜,方便收纳孩子的玩具。


上方空间的地板我们增加了一个圆洞,增加上下空间互动趣味,滑梯台阶边角都做了导圆处理,防止小孩儿撞伤。




【 人造景观|云合设计——震惊!这房子真的只有不到100㎡?设计师也忒牛了!】
滑梯的前方是个平台,孩子也可以在这里看书玩耍,同样也是通向书房的走廊,书房的设计简单大方,一个书桌,满足平时办公。




我们在走廊的空间设计了几个圆弧的元素,转角弧形柜子,透过玻璃延伸到书房,保证空间的采光度。


厨房的空间设计是用石材吧台将客厅隔开,色调的选择选用的牛奶色,整体视觉感更加强烈、灵动。



推荐阅读
- 云线|除了地段,买房的时候还应该注意啥把握好三点,日后居住才舒心
- 云南|云南楚雄知名烂尾楼,重整投资人选定,573位债主约5.4亿债权确认
- 北京城建——风云变局之下,房地产行业的煎熬与前行|蜕变 | 地产
- 翠屏山|云龙区连发三条征收公告共计29527㎡涉及翠屏山、新城区!
- 当代景观规划设计作品|万达广场【桂林】| 桂林
- 齐家云云|有创意的转角楼梯装修设计,能提升装修档次!复式空间学起来
- 全景观|大平层+落地窗,奢享无敌全景!刷爆朋友圈的理想生活!
- 焦点君|大华在云南那么猛有无风险? 一二一大街项目已建起围挡
- 华润连收两家 物管行业收并购风起云涌?|行业透视 | 物企
- 地块|云南建投4.6亿摘昆明岗头村城改55.8亩纯宅地 须配建11万方回迁房
