文案编辑:老曾家二姑娘随着社会的不断发展,年轻的姑娘们独立意识越来越强了,她们更愿意花时间丰富自己的知识、打拼自己的事业——于是忙着忙着,就变成30多数的大龄姑娘了。随着年龄的增长,思想也越来越成熟了,因此单身姑娘们的购房意愿也随之增加;大部分的单身姑娘们会选择一套小户型作为自己稳定的居所,即提高了生活质量,购买小户型经济压力也不大,面积小也好打扫卫生,关键是一个人住面积小也更有安全感。

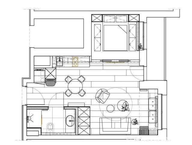
一位80后台北姑娘,通过自己打拼就在工作的城市买下了一套33㎡的小宅;选择全屋极简装修、卧室抬高45㎝,一个人居住好温馨好舒适了。那么她家到底是一个怎么样的家居场景呢?不要走开,下面我们一起来看看吧!户型为了更直观地了解全屋,我们先来看一看户型布局图,这样看起来更通俗易懂,喜欢的朋友借鉴起来也一目了然。

房子属于公寓房,没有独立的厨房,因此客餐厅与厨房形成敞开式格局,卧室面积不到8㎡,较为紧凑。下面是室内装修细节讲解,为什么要这样装,这样装的目的是什么,我会给大家一一分析~玄关与餐厨区域进门玄关处,原本可设计鞋柜的空间其实是非常小的。


在这里设计师利用厨房落水管道与玄关的“平行”落差,通过90度转角的设计手法打造了玄关收纳区与厨房高柜相结合,烤箱以及迷你冰箱均嵌入高柜内。这种设计师手法不仅增加了玄关的收纳功能,家电选择嵌入式空间整体感更强、也避免了卫生死角的形成。

温馨提示:嵌入式电器虽美观,但是大家在借鉴时不仅需要挑选嵌入式的款式,还需要在上下或是左右预留好散热透气孔哈!

餐桌紧挨橱柜,圆形细腿餐桌搭配圆形细线吊灯,这里是屋主用餐的区域、也是屋主的书桌。

与卫生间的隔断墙上满铺木饰面板,细线条搭配一块圆镜点缀;与橱柜、地板彼此相呼应,简简单单的,视觉效果温馨不冷淡。

镜子点缀让空间更灵动。卫生间

卫生间淋浴房与浴柜分左右排列,脏粉色墙砖有着特有的温馨感,把金色、黑色衬托得柔和细腻又不失优雅精致。

马桶是墙排的,上方搭配一排镜柜;增加收纳的同时,又避免了卫生死角的形成,镜子有反射作用,因此卫生间也感觉不到紧凑。客厅

台北虽然不会和我国其它地区一样一年四季温差很明显,但是冬天10以下的温度也是常有的事,因此屋主的衣服也不少;客厅顶天立地的衣柜虽然占用了一定空间,但是为不到8㎡的卧室减轻了不少收纳负担。
推荐阅读
- 小丽|「学好用好《民法典》」“买买买”将影响分割夫妻共同财产
- 宅基地|65岁有存款100万,儿女工作忙,是买一小套房子还是住养老院?
- lpr|2022,武汉楼市绝地反击!能否迎来开年小阳春?
- 碧桂园|郑州高新上周(2.7-2.13)热搜小区榜,碧桂园西湖关注指数最高
- 环比|厦门海沧上周(2.7-2.13)热搜小区榜,购房者更关注融信海上城
- 妙用|电热水壶旧了千万别扔,记住这3个小妙用,省事又方便!
- 环比|中山南区上周(2.7-2.13)热搜小区榜,购房者更关注碧桂园凤凰城
- 御景蓝湾|杭州萧山上周(2.7-2.13)热搜小区榜,购房者更关注御景蓝湾
- 环比|北京房山上周(2.7-2.13)热搜小区榜,购房者更关注加州水郡西区
- 区位|青岛市南上周(2.7-2.13)热搜小区榜,购房者更关注金茂湾
