布局|农村盖房就在这10套里选一套,颜值高还实用,尤其第7套特别亮( 二 )
占地面积:147㎡
建筑面积:452㎡
建筑高度:10.4m
建筑情况:共设5室 4厅 5卫 1厨 1茶室 1娱乐室 3储藏室 1影音室 1书房 1阳台

平面布局图:



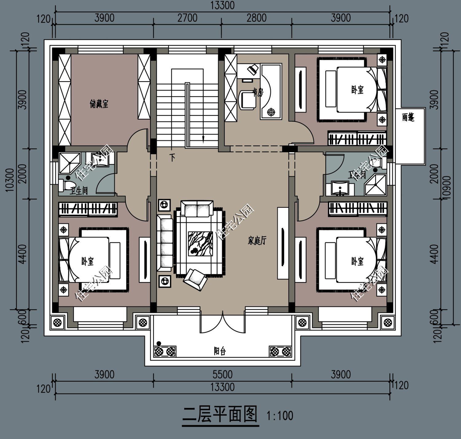
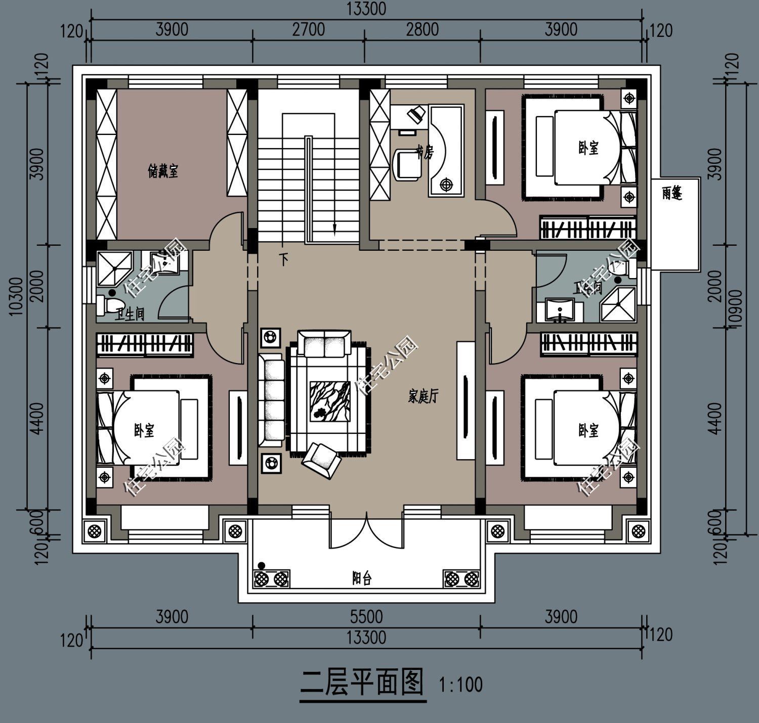
户型七:
占地尺寸:10m×12.8m
占地面积:134㎡
建筑面积:482㎡
建筑高度:12.6m
建筑情况:设5室 2厅 7卫 1厨 1起居室 1阳台 1阳光房 1露台

平面布局图:




户型八:
占地尺寸:13.8m×9.8m
占地面积:159.06㎡
建筑面积:507.72㎡
建筑结构:框架结构
建筑高度:14.95m
建筑情况:设8卧室 5厅 5卫 3厨 1棋牌室 2露台 2阳台

平面布局图:



户型九:
占地尺寸:10.8m*12.7m
占地面积:135㎡
建筑面积:453㎡
建筑高度:13.9m
建筑情况:共设9室 2厅 5卫 1厨 2储物间 1玄关 1起居室 2衣帽间 2露台

平面布局图:

【 布局|农村盖房就在这10套里选一套,颜值高还实用,尤其第7套特别亮】



户型十:
占地尺寸:18.88m×13m
占地面积:235㎡
建筑面积:924㎡
建筑高度:12.9m
建筑结构:框架结构
建筑情况:设10室 2厅 2起居室 1厨房 1堂屋 8卫 1洗衣房 1酒窖

平面布局图:



推荐阅读
- 别墅|面宽16.5米,6室1厅带车库露台,农村老家盖套这样的房子好看又实用
- 两厅|造价18万的两栋小别墅,带走廊设计,为农村生活量身定制!
- 户口|土地确权证作用是啥?户口迁出农村的子女能继承土地吗?答案来了
- 中式小院|10套适合农村盖的中式小院,第3、4套尤其美,建第5套只花15万
- 业主|农村建房就得带个储藏室!你不建永远都不知道到底有多实用
- 限高|农村一排五间平房图片设计图,不到25万就能建,还不用考虑限高
- 老师傅|农村建房第一层多高最好?越高越好?老师傅:这些标准要明白
- 农村|这款农村别墅,外观布局都是精益求精,最大程度上满足了乡村生活
- 别墅|农村自建二层别墅,面宽13米有6室1厅,好看又实用,盖房就盖这样的
- 浴缸|不懂布局和水电设计,怎么可能装出受欢迎的优质卫生间呢
