随着房价的上涨,越来越多人买房时都选择小户型新房!其一小户型面积不大,所需的装修和购房预算少,其次小户型内部空间小,生活中清洁全屋花费的时间也少。但通常我们印象中的小户型也有50~60平米左右,那么全屋不到30平米的户型你见过吗?
30平米是什么概念呢?或许对一些大点的户型而言,30平米就是一个阳台的大小,但就是这样小的一套新房,完工后却火遍了整个小区!全屋小巧精致,样样俱全堪称小户型设计的“典范”。

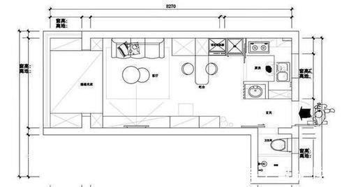
如图所示,从入户到阳台的进深只有8.2m左右,但却依次布置了厨房、吧台、客厅及卧室多个使用空间。屋主将厨房和卫生间布置在了入户两侧,内部空间利用到了极致,装修非常的大气美观!下面一起来看看实景照片吧。
入户玄关

入户玄关是进入家里的第一空间,所以收纳和换鞋区是必不可少的!本案例玄关的储物区设计在右侧,鞋柜采用嵌入式设计,上部是封闭式柜门储物区底部留空设计置物架,既美化了空间又留宽了过道,以白色为主的色彩搭配也增添了几分明亮感。

顺着玄关往里走,整个房间的布局一览无遗!正对入户左侧是电视墙和餐边柜,右侧依次设计了吧台、沙发区和卧室区。小巧的空间得到了充分利用,虽然布局紧凑,但各种使用功能齐全,能满足基本的生活所需。

来看右侧的吧台和储物柜,吧台是折叠式设计,平时可以隐藏到柜体内为厨房到客厅留出过道,需要时将台面放下来就能代替餐桌,一举多得!

吧台右侧有一个小巧的客厅,客厅装饰十分素雅,以白色为主搭配小体量的家具和平顶,让整个空间看上去更显宽敞!客厅背景墙造型简单,墙面通刷大白墙,将通透明亮的气质体现得淋漓尽致。客厅电视柜和沙发中间铺放了地毯,尽显小清新风格。

厨房内布局也很简洁,墙面地面通铺白色瓷砖,搭配瓷白色吊柜和橱柜,将简约风整洁休闲的气质展露无余!虽然厨房空间小,但洗切炒的动线布局依然明朗,L形吊柜和橱柜也带来了充足的收纳区,让日常使用更加方便。


客厅外面的区域布置成了休息室,由于空间较小又需要同时满足收纳和使用需求!所以巧妙地用组合式榻榻米设计代替床+衣柜,榻榻米内部可以储物,台面又能作为休息区、娱乐区和观景区使用。这个区域临窗,平时光照充足夜晚躺在床上就能看到星空,非常的惬意。
推荐阅读
- 厨房|我敢说,这套70㎡小户型比很多房子还要有品质,进门就被惊艳了
- 砸钱|过来人铁板真真大实话!这13个装修砸钱就是傻!个个增添生活负担
- 颗粒板|就因为户型小,这5样东西才应该买大的,才显得房子干净整洁
- 品质|装修到了这5个环节,一定要去盯工,为了品质,更是为了安全
- 郑州|濉溪河西板块购房小指南在这,速看!
- 衣服|家里没有这5种东西,反而越住越舒服,早点知道就好了
- 史密斯|新家入住大半年,当初坚持买入这8样“肉疼”,现在倍感幸福
- 客厅|传统客厅已经过时了!现在年轻人喜欢这样装,真是太有想法了
- 小户型|我要有套loft公寓,现浇楼梯首先舍弃,这3种楼梯正适合小户型
- 住房公积金|有钱买六千万房子,没钱给中介费?她这件事的背后内幕一点都不简单
