
在我的印象里
跃层是所有房型里最浪漫的物业形态
它能够满足我对浪漫的所有想象
曾几何时我也想拥有这么一套跃层
【 浪漫|跃层给了我对浪漫的所有想象】
硬装设计师:黄 勇
效果呈现:凯 爷
软装设计师:陌 西
Area/面积:98.3㎡跃层
Style/风格:现代木质风
Address/地址:保利观澜
设计解析

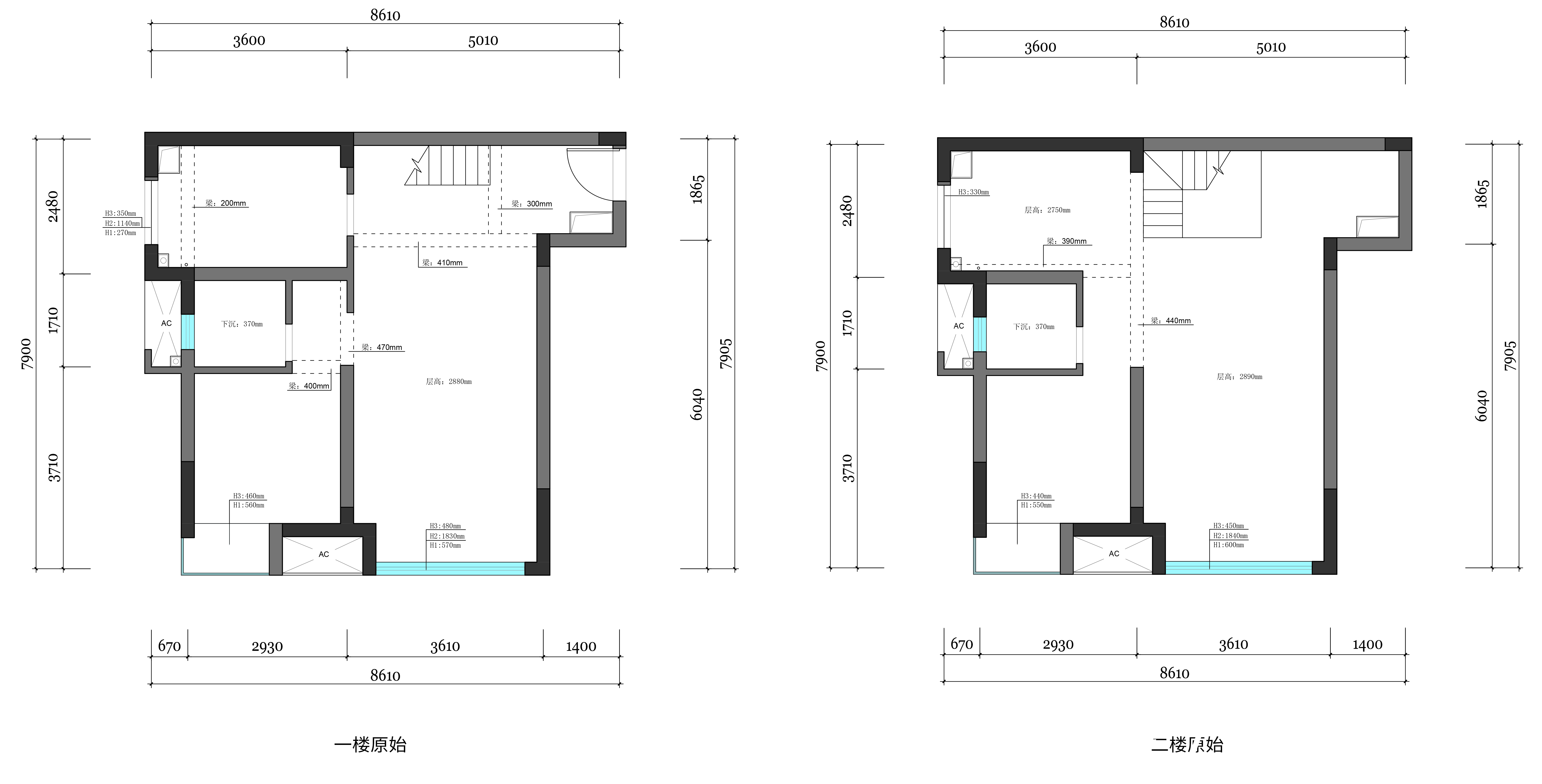
这个项目在我们接手的时候,原始结构的墙体部分已经拆除了。留下的主体框架显示出这个户型本身的方正和规矩。只不过厨房原始较小,楼上下卫生间有落水管横亘影响使用。

因为只有2人世界,所以将跃上层整层打造成了主卧空间。只是鉴于未来肯定会有孩子,所以留下了一个次卧空间,以后会作为儿童房。楼下保留客房,招待朋友或者父母来时使用。厨房较小,做了开放式厨房,与客厅互动紧密。


从硬装的造型到格局布置上都尽量强调温馨感、安全感、互动感。空间布局上保持每个空间能够与当前空间有互动关联。视觉上保持空间开阔度的同时还保持着温柔温暖的氛围。

色彩上多使用了较为温婉气质的驼色与砥粉色,而这种温暖自然的材质多出于原生态的木质中。所以,木质也成为了本案的主要元素。同时也用了沙色和银桦色来提升质感。
餐厅



从入户进来,经过玄关以后,你会直接看到餐厅。纯木质的餐桌加藤编的餐椅,你能感受到的只能是温柔。外置的冰箱和楼梯下的储物柜,又很巧妙的完善了餐厅的功能。它同时又距离厨房和客厅仅有两三步的距离,所以不论你的爱人在哪个位置,你的眼里都能看到Ta,帮到Ta。
厨房

原来的厨房很小,经过改造后,形成了“并列”的版开敞式厨房。不仅增加了厨房的操作台面和储藏空间。也加强了空间之间的互动。更巧妙的分离了厨房动线。
客厅

温馨和浪漫是本案的唯一主题。所以我们通过空间的互动彰显“你中有我,我中有你”的恋爱“酸臭味”。用木质彰显温婉自然与纯净。



木质打造的纯电视背景墙却没了电视,改用了投影幕布。在小空间里用大,既能彰显空间感,也能让空间的安全感更强。同时,也能体现大片观影的视听感受和氛围。
推荐阅读
- 浴缸|120㎡无界空间住宅,东方美学与欧洲经验的浪漫融合
- 华丽转身|200㎡大平层,“华丽转身”成跃层,户外花园更是人人羡慕
- 花瓶|虎年好物|想要浪漫烛光晚餐,这样装扮二人世界用餐空间
- 空间|180㎡浪漫小窝,蓝与粉、灰与白,优雅情趣,轻松舒适
- 浅灰色|101㎡美式奢华,质感的空间,浪漫的家,邻居看过直夸好
- 跃层|拿到房后我很好奇:明明买的是跃层,为什么开发商不把楼梯现浇好
- 居所|168㎡欧式风,浪漫唯美的最终居所
- 昆明|“儿媳,买房我给了钱,为啥不让我住”“首付都没给够,有脸说”
- 台面|女主128㎡新居,色彩碰撞带来的新颖浪漫体验,引得上万网友收藏
- 李思思|复古又浪漫,神秘又有诗意,处女座的别墅也是闪闪发光
