今天分享一套中式风的135平米的四室两厅大平层,该案例借用传统中式园林设计的个别手法,少了几分浓墨重彩,多几分雅致清宁,透过山水画中的写意笔触,勾勒出空间的气韵。

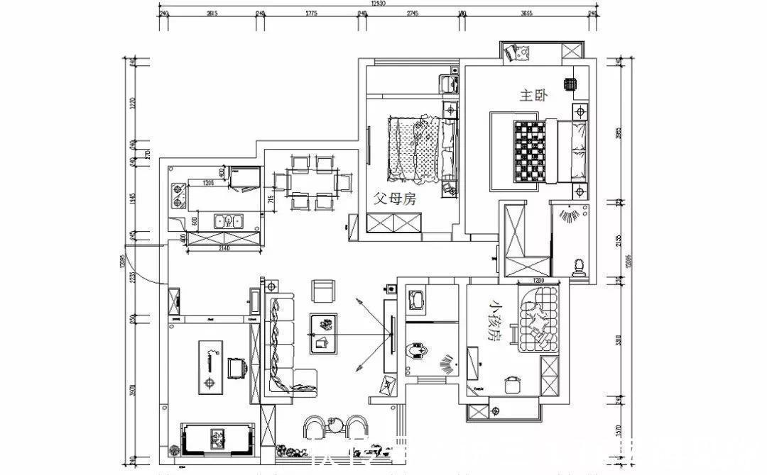
平面布置图
玄关

进门玄关的位置之前其实是一个入户花园,不算在正式房间内。地面铺装是鹅卵石瓷砖与青石砖的结合,方便打理同时又有一些户外庭院的感觉。

利用中式庭院的手法做了一点透景的设计。

进门就可以看到一点点走廊和客厅,整体错落有致,不像一般的户型一望见底。
客厅

客厅悬浮式极简的电视背景墙,加入了一些文化石的元素,摒弃了一般传统中式电视背景的设计。

采用传统形式的圈椅和改良版罗汉床榻,点缀很年轻的青蓝色和鹅黄色,体现整体富有文化底蕴却不老成的感觉。

傍晚开灯效果。

从客厅看到门庭,换鞋凳上的画为业主学生手绘。非常有纪念意义。
餐厅

餐厅延续整体风格,餐桌设置了六人位。
书房

L型大阳台的一半用来做书房,不仅采光一流,同时布局也非常适合。

一进门的右手边就能来到主人最熟悉的书房,也是他最常呆的地方。

利用园林的造景手法做了一点设计,使得两面看上去都自成风景。
【 青蓝色|135平四居室,原木中式风格,文化石电视墙,又增添了些野性美】过道

走廊主要是做了一些衔接设计,采光一般,所以用的是筒灯没有用吊灯,并用装饰画作为点缀。
主卧


花鸟壁纸+符合整体色系的家具。主卧床为软包床,体现活泼的禅意氛围。

推荐阅读
- 浅蓝色|131平以甜美欢快清新的设计风格为主调,从进门就有家的感觉
- 套房子|135㎡的真实案例,告诉你养老房要装中式风,20万就能给老人体面
- 大户型|参观135平米新房装修,完工效果比样板房漂亮,客厅大飘窗超实用
- 楼盘|上周(1.17-1.23)青岛二手房网签1087套 同比下降28.6%
- 青岛市|大年初六送穷日,关于房子户型的三个知识你了解吗?
- 青岛市|青岛房价最高小区排行榜出炉!最高25万元/㎡!快看看有你家小区么?
- 青岛市|青岛房价本周上涨115元,青岛房东笑的合不拢嘴
- 长租公寓|与牛共舞 青客公寓走向破产清算,长租公寓未来市场怎么样?
- 青岛市|住宅用地变商业用地!青岛新主城四宗地块调整控规
- 青岛市|天津市一位购房者低于市场价131万元捡漏一套河西区香水园的房产
